


Un salon haussmannien
Comment moderniser un salon haussmannien sans le dénaturer ?

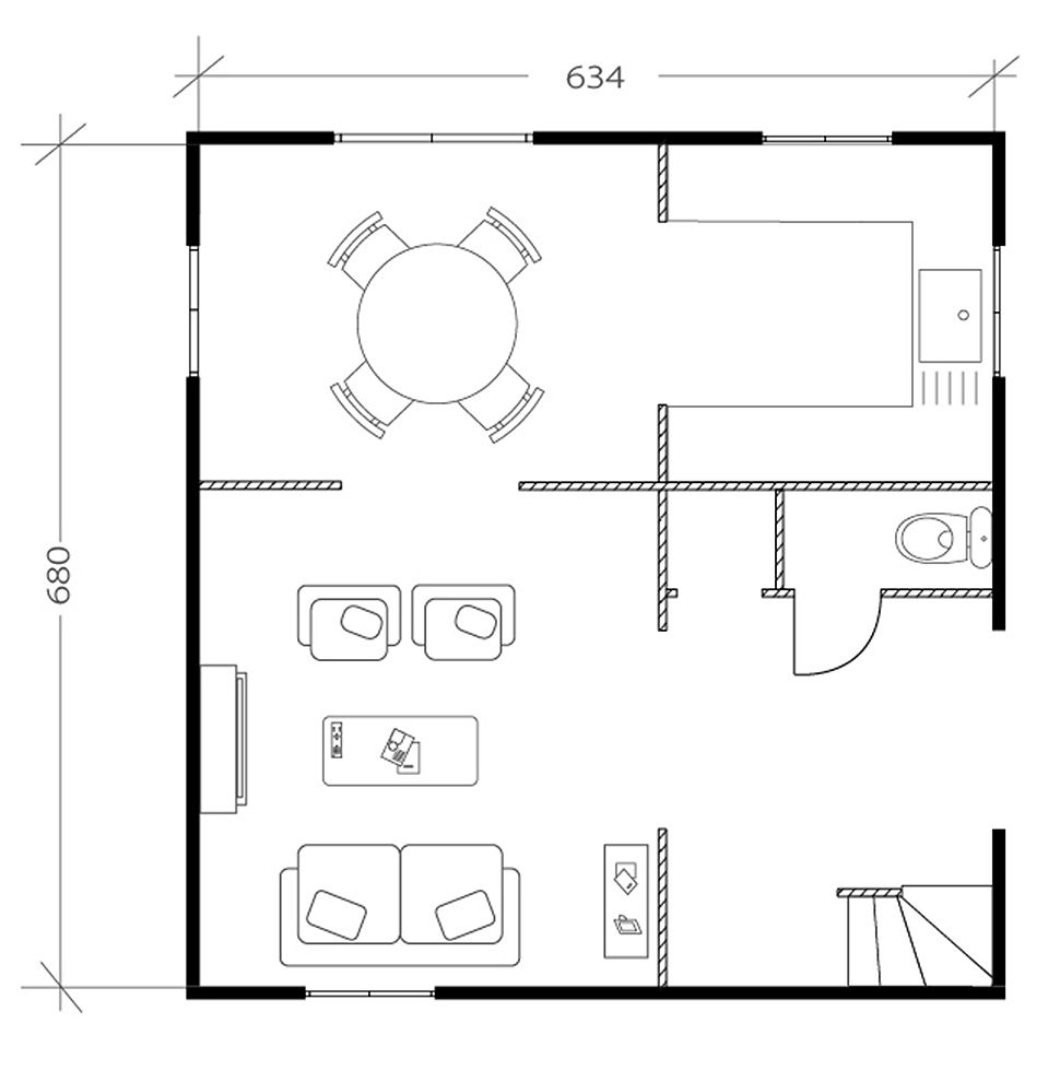
Ce rez-de-chaussée typiquement haussmannien n’avait pas une circulation optimale et pouvait être sombre une fois les portes fermées. Pour ouvrir l’espace et apporter de la luminosité sans pour autant faire de concession sur la possibilité de cloisonner les pièces à la demande, nous avons remplacé les grandes portes battantes par des modèles coulissants en verre qui laissent filtrer la lumière et dont la texture matelassée reprend les codes de l’intérieur bourgeois, la touche moderne en plus.
- Les conforts apportés
- Une optimisation de l'espace
- Une isolation thermique renforcée
- Plus de lumière naturelle
On remplace les portes battantes par des portes coulissantes, à galandage ou en applique, vitrées avec du verre texturé. Un choix qui permet d'optimiser l'espace sans se couper de la lumière naturelle. Avec les effets sur le verre, l'intimité est également préservée, on ne peut pas voir ce qu'il y a dans la cuisine.
Pour apporter le style classique chic, les nouvelles fenêtres sont en bois exotique, plus résistant et plus esthétique que les autres matériaux. Elles sont également équipées du double vitrage à isolation thermique renforcée. Enfin, pour compléter le dispositif, les radiateurs ont été changés pour un modèle à inertie fonte, à la fois design et économique.
Équipements Fenêtres, portes, radiateurs, prises et interrupteurs | 6 800 € TTC |
|---|---|
Revêtements Parquet, carrelage, toile à peindre, peinture | 2 300 € TTC |
Matériaux Cole, sous-couche acoustique | 1 200 € TTC |
Installation Dépose et évacuation des gravats, mise en œuvre | 1 200 € TTC |
TOTAL TTC 13 300 € Prix indicatif intégrant fourniture et pose, TVA applicable incluse (10% en rénovation, 20% en neuf). | |


