


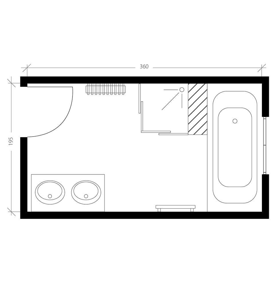
Une salle de bain de 7 m²
Comment optimiser l'espace d'une petite salle de bain familiale ?

Priorité au bien-être pour cette salle de bain revisitée dans un style chaleureux et authentique. L’ajout d’une isolation, d’une ventilation et d’une fenêtre oscillo-battante ont permis de résoudre les problèmes de température et d’humidité. Bien redistribué et optimisé grâce à d’astucieux rangements, l’espace accueille baignoire, douche et meuble double vasque, tout en laissant une grande liberté de circulation. Matériaux nobles et tons bruns viennent parfaire l’ambiance cocooning de la pièce.
- Les conforts apportés
- Une isolation thermique améliorée
- Un espace optimisé ou l'on circule facilement
- Une décoration intemporelle et chaleureuse
- Un espace facile à vivre avec des rangements
La pièce est plus calme et mieux tempérée grâce à l'isolation du mur donnant sur l'extérieur et à la pose d'une fenêtre à vitrage haute performance, en PVC plaxé imitation bois pour concilier praticité et esthétique. Son ouverture oscillo battante permet d'aérer la pièce efficacement.
La cloison séparative, montée entre la douche et la baignoire, remplit plusieurs fonctions.
Elle fait office de gaine technique pour dissimuler la tuyauterie et elle intègre également des rangements pour recevoir les produits de toilette. Ainsi aménagé, ce dispositif ingénieux optimise l'espace et l'organise de manière pratique.
Dans un projet de rénovation, l'ajout d'une douche implique en général de la surélever pour permettre le raccordement aux évacuations. Afin de limiter la hauteur de marche, un bac à douche extra-plat de 4 cm a été choisi. Il repose sur un socle de 10 cm de haut. De plus, pour faciliter l'accès, une paroi de douche coulissante sans rail a été installée.
La bonne ventilation d'une salle de bain est une précaution indispensable. En effet, la condensation, les moisissures et le linge humide sont les ennemis d'un air sain. Pour réguler le taux d'humidité, un extracteur d'air hygroréglable a été installé. Il se déclenche automatiquement pour maintenir le taux d'humidité de la pièce entre 45 et 60 %.
Un faux plafond a été disposé au-dessus de la baignoire et de la douche. Cet élément esthétique structure l'espace et joue un rôle pratique : il intègre des spots commandés par un variateur d'intensité, capable de moduler l'éclairage de chaque zone. Ainsi, selon le moment de la journée, la luminosité peut être adaptée au confort visuel de chacun.
Equipements Meuble, douche, robinetterie, Baignoire | 3 600 € TTC |
|---|---|
Revêtements Carrelage de sol, faïence, mosaïque, peinture | 1 450 € TTC |
Matériaux Plomberie, électricité, produits de mise en œuvre | 850 € TTC |
Installation Mise en œuvre, dépose et évacuation des gravats | 4 000 € TTC |
TOTAL TTC 9 900 € Prix indicatif intégrant fourniture et pose, TVA applicable incluse (10% en rénovation, 20% en neuf). | |
Rénovation d’une salle de bain de 7m2
Comment exploiter tout le potentiel d’une salle de bains de 7 mètres carrés ? Comment optimiser l’espace afin de rendre cette pièce fonctionnelle et confortable ? Quelles sont les idées en termes de déco afin d’aménager la salle de bains à son goût ? Quelles sont les contraintes de coût ? Tous ces éléments doivent être réfléchis pour la rénovation de votre salle de bains. Les spécialistes La Maison Saint-Gobain vous livrent leurs conseils pour des travaux réussis.
Conseils pour la rénovation d’une salle de bain de 7m2
Dans une salle de bains de 7 mètres carrés, de nombreuses idées et astuces peuvent être mises en œuvre afin d’optimiser sa surface et d’améliorer son confort au quotidien. Pour un coût modéré, certaines idées de décoration peuvent en outre contribuer à rendre cette pièce plus moderne et agréable.
Salle de bain 7m2 : Bien choisir sa peinture
Si vous décidez dans le cadre de votre rénovation, de rafraîchir les murs en optant pour de la peinture, veillez à ne pas choisir n’importe quelle couleur. Dans une pièce à la surface restreinte, il est en effet important de miser sur des couleurs claires afin d’agrandir visuellement l’espace. Toutefois, dans certaines configurations de salles de bains certaines couleurs de peinture plus foncées peuvent être admises. C’est le cas pour une pièce de forme rectangulaire ou en couloir. Afin de casser cette impression d’étroitesse, il est conseillé de peindre le plafond en blanc, deux murs d’une peinture foncée puis deux autres d’une peinture de couleur claire.
Salle de bain 7m2 : Penser à un aménagement intelligent
La rénovation de votre salle de bains (ou de douche), passe aussi par son aménagement. Afin d’optimiser l’espace, le placement ainsi que la sélection des meubles et des différents éléments présents dans la pièce compte beaucoup. La circulation doit pouvoir se faire de manière fluide. Dans certaines pièces, la douche à l’italienne sera par exemple un choix préférentiel par rapport à une baignoire qui occupe plus de place. Concernant le choix des meubles et des équipements, privilégiez dans la mesure du possible les produits multi-usages. Ainsi, le meuble placé en dessous du lavabo par exemple, peut être installé sur roulettes et utilisé à la fois comme rangement et comme assise.
Salle de bain 7m2 : User d’astuces déco
Tout comme l’aménagement et la sélection des meubles, la décoration joue elle aussi un rôle important dans votre rénovation de salle de bains. Dans une petite surface, l’ajout de miroirs par exemple contribue à agrandir visuellement l’espace. Ne vous contentez pas du miroir fonctionnel au-dessus du lavabo mais ajoutez-en quelques autres sur les murs afin de donner une impression d’espace.
Salle de bain 7m2 : Ne pas négliger l’éclairage
Enfin, l’éclairage fait également parti des éléments à ne pas oublier. Indispensable pour y voir clair dans votre salle de bains, il peut en outre faire partie intégrante de votre déco et vous aider à créer une ambiance qui vous plaît.


