


Un agrandissement de maison
Comment surélever et réorganiser une maison de plain-pied ?

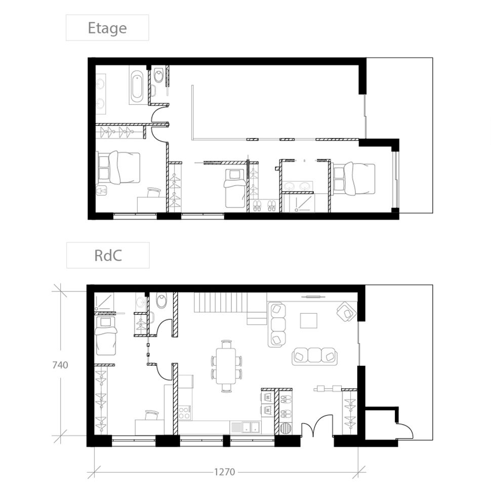
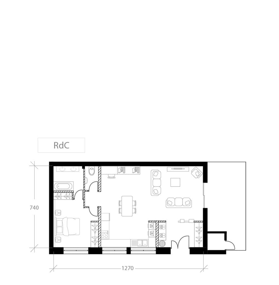
On profite de la surélévation de cette maison de plein pied pour en faire un espace aux volumes généreux, structuré autour d’un vaste salon cathédrale, pièce maîtresse du rez-de-chaussée avec sa cuisine ouverte et son escalier aérien. L’étage vient accueillir les chambres et leur salle de bain. Confort acoustique et économies d’énergie obligent, toutes les pièces de la maison sont isolées par l’intérieur, et on installe un système de chauffage adapté au nouveau volume, économe et intelligent.
- Les conforts apportés
- Des espaces décloisonnés
- Un étage isolé et confortable
- Une douche à l'italienne pratique
- Un installation de chauffage économe
Une salle de bain avec douche à l'italienne est aménagée à l’étage de l’extension. Pour optimiser l'espace, de multiples niches très pratiques sont créées afin d’accueillir produits de beauté et accessoires. Ce sont des niches murales étanches et prêtes à poser, qui permettent d'avoir un espace douche sur mesure et pratique, à la déco personnalisée.
Pour cet agrandissement, il a fallu redimensionner l'installation de chauffage avec une nouvelle installation économe en énergie. Le choix s’est porté sur une pompe à chaleur astucieusement installée dans l'ancien débarras. Cet équipement performant, connecté et adapté à la rénovation assure une eau à 60°C même par -20°C à l'extérieur.
Le sol du grand salon ouvert sur la cuisine est désormais revêtu d’un béton ciré très esthétique, qui se marie très bien avec la décoration ethnique. Il permet d'uniformiser l'aspect du sol après les travaux de décloisonnement et le jeu des couleurs permet de marquer l'emplacement de la zone repas pour réchauffer et rythmer ce grand espace.
La chambre, comme toutes les autres pièces, est isolée par l’intérieur grâce à un doublage sur ossature intégrant une laine de verre performante. Cela permet d’assurer maintien d’une température agréable et économies d’énergie, et de cacher par la même occasion les réseaux électriques nécessaires dans le doublage.
Avec sa belle hauteur sous plafond, le salon est la pièce maîtresse de cette élévation. Une ouverture est créée pour accueillir l’escalier qui dessert l’étage. C'est un escalier en bois, aérien et très élégant qui a pris place dans le grand volume. Grâce à son limon métal double crémaillère et ses marches en hêtre, il s’intègre facilement dans le décor.
Réalisation de l'extension Gros œuvres, menuiseries | 135 000 € TTC |
|---|---|
Aménagements de l'étage Cloisonnement, isolation thermiques et décoration | 41 000 € TTC |
Salles de bain et WC Mobilier, équipements, ventilation, carrelage | 21 000 € TTC |
Aménagement du rez de chaussée Nouveau salon ouvert, béton ciré, peinture, escalier | 13 000 € TTC |
TOTAL TTC 210 000 € Prix indicatif intégrant fourniture et pose, TVA applicable incluse (10% en rénovation, 20% en neuf). | |
Ces articles pourraient vous intéresser :




