


Une petite salle de bain
Comment profiter pleinement d'une petite salle de bain ?

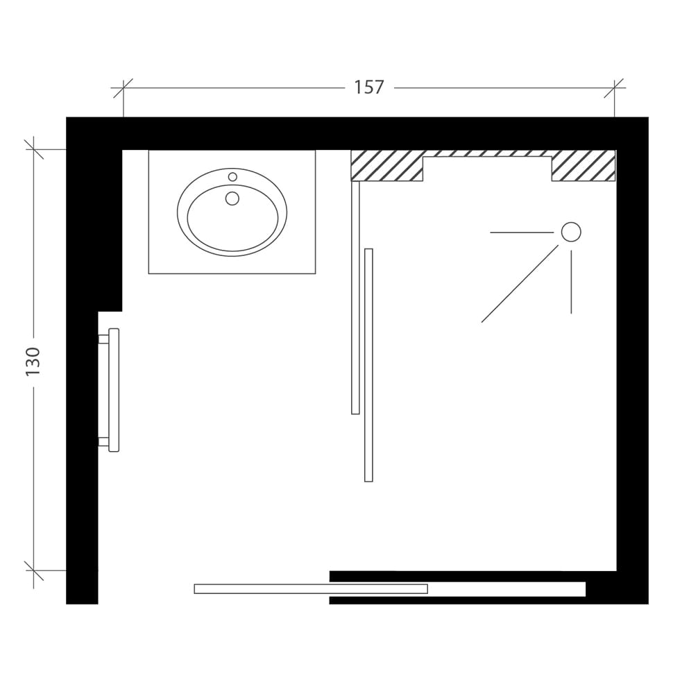
Cette petite salle de bain désuette de 2m2 s'est métamorphosée en espace détente tout confort. Premier défi : installer une douche spacieuse, en remplacement de la baignoire sabot trop encombrante. Deuxième défi : apporter de la luminosité, dans cette pièce sans fenêtre, grâce à l'installation d'une porte d'entrée vitrée. Dernier défi : le rangement ! Pour ne pas subir le manque de mètres carrés, nous avons déniché des systèmes de rangement simples, pratiques, et surtout malins.
- Les conforts apportés
- Une salle de bain plus lumineuse.
- Un espace optimisé avec tout à portée de main.
- Un style moderne et minimaliste.
- Une salle de bain facile à vivre et sécurisée.
Dans cette douche grand format, le receveur extraplat antidérapant, d'une hauteur visible de 4 cm seulement, permet un accès facile à la douche et en toute sécurité. En complément, une paroi de douche coulissante sans seuil bas a été installée. Cet ensemble se fond parfaitement dans le décor de la salle de bain.
Etape importante pour des travaux réussis : traiter les murs de la salle de bain contre l'humidité !
Avant de poser le carrelage, les murs ont été protégés par l'application d'une sous-couche d'étanchéité.
Le caisson de la porte à galandage a été recouvert d'une plaque de plâtre hydrofuge.
Cette colonne de douche avec robinetterie encastrée est une solution idéale dans ce petit espace.
Elle dispose de rangements malins, pour disposer les produits de toilette. L'installation ne nécessite pas de travaux de plomberie complexes. Pour une finition parfaite, les murs de la douche sont habillés avec un panneau mural coordonné.
Equipements Meuble, douche, robinetterie, Porte coulissante | 2 190 € TTC |
|---|---|
Revêtements Carrelage de sol, faïence | 360 € TTC |
Matériaux Plomberie, électricité, produits de mise en œuvre | 850 € TTC |
Installation Mise en œuvre, dépose et évacuation des gravats | 2 500 € TTC |
TOTAL TTC 5 900 € Prix indicatif intégrant fourniture et pose, TVA applicable incluse (10% en rénovation, 20% en neuf). | |
Idée pour une petite salle de bain
Vous manquez d’idées pour aménager votre petite salle de bains ? Vous êtes en quête de rangements intelligents pour pouvoir optimiser l’espace ? Vous hésitez entre une douche et une baignoire ? Vous recherchez l’inspiration pour une déco en phase avec vos goûts ? Pour vous aider à prendre les bonnes décisions et à faire les bons choix, les spécialistes de La Maison Saint-Gobain vous guident et vous conseillent.
Quels rangements et quels meubles pour optimiser l’espace d’une petite salle de bain ?
Que vous viviez dans une maison, dans un appartement ou encore dans un studio, la salle de bain ou salle d’eau est rarement la pièce la plus grande. Aussi, lorsqu’il faut l’aménager, le choix des meubles et des rangements peut s’avérer être un véritable casse-tête. Nos experts du secteur vous aident à faire les bons choix.
Dans les petites salles de bains, pas question d’être fantaisiste : il faut aller à l’essentiel en misant sur le sens pratique et l’ergonomie des rangements afin d’optimiser l’espace. Malheureusement, il faudra sûrement laisser de côté votre envie d'aménager un coin buanderie ou d'installer des W.-C. Le sur-mesure est une solution onéreuse mais bien adaptée aux salles d’eau au plan architectural contraignant. Par ailleurs, il est conseillé d’opter pour des rangements en hauteur afin de ne pas encombrer la place au sol. Un rangement suspendu au mur permet en outre une meilleure fluidité de circulation. L’aménagement de ces rangements doit être pensé de manière pratique et logique. Ainsi, l’armoire au-dessus de la vasque est un indispensable. Pour faire de ce rangement un élément multifonction, vous pouvez par ailleurs choisir d’y intégrer un miroir.
L’importance des couleurs est bien trop souvent sous-estimée dans une pièce. Pourtant, cette caractéristique peut contribuer à agrandir ou rétrécir visuellement l’espace. Dans l’aménagement de votre petite salle d’eau, l’utilisation de couleurs claires comme le blanc, le beige ou encore le gris clair contribue à agrandir l’espace. Par ailleurs, l’utilisation de matériaux comme le bois clair a le même effet. Ces astuces de couleurs ne sont cependant pas les seules à pouvoir donner une impression de grandeur à votre salle de bains. Vous pouvez également faire courir une bande de carrelage plus foncée sur votre carrelage mural blanc afin de donner une sensation de profondeur à la pièce. Pour plus d’astuces déco, n’hésitez pas à vous inspirer des différentes photos des magazines ou mises en ligne sur les réseaux sociaux.
Aménagement d’une petite salle de bain : faire le choix d’une baignoire ou d’une douche ?
Quelle que soit l’espace disponible, le choix entre la douche et la baignoire est toujours un dilemme assez compliqué à résoudre. C’est encore davantage le cas lorsqu’il s’agit d’une petite salle de bains. Confort, design, aspect pratique, déco ou encore place au sol entrent en compte dans ce choix.
Pour un aménagement optimal d’une petite salle de bains, la douche à l’italienne est généralement recommandée. Spacieuse et confortable, celle-ci est toujours très design et apporte beaucoup de style à la pièce. Par ailleurs, il est conseillé d’éviter les cabines de douche avec portes à battants, car cela risquerait d’encombrer inutilement l’espace.
Si toutefois vous préférez les bains, la baignoire est également une possibilité même au sein d’une petite salle de bains. Il existe en effet différents formats de baignoire et, selon le plan de la pièce, celle-ci peut tout à fait se faire une place.


