Salle de bain accessible, quels paramètres prendre en compte ?
Temps de lecture : 3 min

Estimez gratuitement le coût de votre projet
Quel que soit votre âge, la salle de bains doit rester une pièce agréable à vivre, où vous pourrez vous détendre. Pour qu’elle soit accessible en toutes circonstances, il faut adapter l’aménagement de la salle de bains et ses équipements.
Concevoir une salle de bains accessible en fauteuil roulant
Avant toute chose, il ne faut pas qu’il y ait d’obstacles dans la pièce afin qu’une personne en fauteuil roulant puisse manœuvrer et faire un demi-tour dans un espace libre. Réaménagez la salle de bains pour faciliter la circulation des personnes à mobilité réduite (PMR) dans la pièce et que les déplacements d’un équipement à un autre soient optimisés.
Ainsi faut-il veiller à ce que :
- La largeur de la porte de communication soit de 90 cm au minimum pour faciliter l’accès à la salle de bains.
- Aucun objet n’entrave la circulation dans la pièce. Le sol doit être dégagé, sans tapis ou autre accessoire génant.
- La zone de giration (qui permet de faire demi-tour) doit mesurer 1,50 m de diamètre afin de permettre un accès facile aux différents équipements.
- Côté équipement, l’idéal est de disposer d’une douche ouverte, avec un accès de plain-pied. Mais si des portes doivent être installées, mieux veut privilégier des portes coulissantes ou pliantes pour ne pas avoir de débattement de porte et libérer l'espace au sol.
Une personne en fauteuil ou utilisant un déambulateur peut ainsi se déplacer sans encombre. Idéalement, toute la surface au sol doit être recouverte d’un revêtement antidérapant pour éviter tout risque d’accident.

Vous décidez de remplacer votre baignoire par une douche accessible : commencez par échanger avec votre artisan sur la faisabilité d’une douche à l’italienne. C’est l’idéal ! Ses dimensions minimales doivent être de 90 x 90 cm. Mais s’il ne peut pas intégrer le receveur dans la chape existante, la solution consiste à installer un receveur ultraplat de 4 cm maximum. Si besoin, demandez à votre installateur de placer une rampe devant le receveur pour vous permettre d’y accéder plus aisément. Pensez à ajouter des accessoires pour garantir la sécurité (barre d’appui, siège de douche rabattable…) et une robinetterie thermostatique, avec des boutons de commande faciles à manipuler.
Si vous décidez d’aménager une salle de bains accessible, pour visualiser la configuration de la pièce, imaginez un cercle au sol de 1,50 m de diamètre, délimité par les toilettes, le lavabo et la douche.
Concevez votre salle de bain en 3D
Créez votre projet et projetez-vous dans votre future salle de bain
J'accède au configurateur 3D

Comment faciliter la toilette d'une personne en perte d'autonomie ?
Pour que le moment de la toilette ne se transforme pas en parcours du combattant, misez sur des équipements adaptés.
Le lavabo ou la vasque
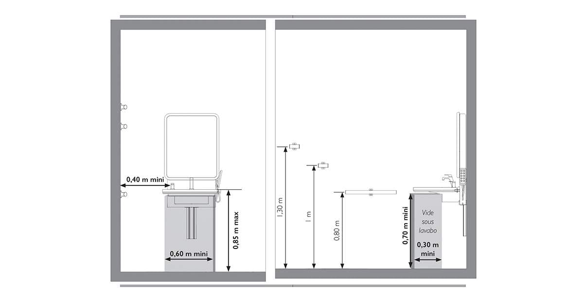
Pour que son utilisation soit ergonomique, le haut de cet équipement doit être installé à 75 cm minimum et 85 cm maximum du sol pour être utilisé confortablement en position assise.
Pour le meuble vasque, pensez aux modèles qui intègrent porte-serviettes et étagères de rangement qui n’encombrent pas l’espace inutilement. Pratique pour avoir à portée de main les produits de toilette. Le must : il existe des meubles avec un fauteuil sur roulettes qui se glisse sous la vasque. Pour plus de confort, préférez un mitigeur avec poignée allongée ou à bouton poussoir, des modèles qui sont faciles à manipuler, ou un robinet électronique qui fera couler l’eau simplement en passant ses mains devant le capteur.

Choisir un plan vasque avec siphon déporté permet de libérer l’espace pour le passage des jambes lors d’une utilisation en position assise.
Les toilettes
Pour être assis confortablement, les WC. surélevés sont très pratiques car cela demande moins d’effort pour s’asseoir et se lever. Privilégiez une assise la plus haute possible (entre 45 et 50 cm du sol). Vous trouverez aisément le bonne hauteur parmi les modèles de WC à poser ou suspendus. Vous voulez le top du confort ? Orientez votre choix vers des toilettes japonaises, où l’hygiène personnelle est automatisée grâce aux jets lavants. Dans tous les cas, pour faciliter les mouvements et sécuriser l’espace, des barres de maintien, solidement fixées au mur, sont nécessaires.
Des équipements à la bonne hauteur
Outre les hauteurs du lavabo (ou de la vasque) et du WC précisez ci-dessus, les rangements et accessoires de la salle de bains doivent également être accessibles en position assise en respectant certains critères.
- Les meubles de rangement doivent être fixés entre 30 cm et 1,60 m du sol pour que leur contenu soit à portée de la main.
- Les patères, porte-serviettes ou crochets à suspendre doivent être placés entre 90 cm et 1,30 m de hauteur.
- Les miroirs seront plus pratiques s’ils sont inclinables.
- L’interrupteur doit être situé à une hauteur inférieure ou égale à 1,30 m du sol (90 cm minimum). Pour créer un environnement plus confortable, les interrupteurs à détecteur de mouvement gèrent automatiquement l’éclairage lorsque vous entrez et sortez de la pièce.
N’oubliez pas de prévoir un espace de 90 cm d’un côté ou de l’autre des W.-C. pour pouvoir placer le fauteuil roulant à côté de la cuvette et ainsi faciliter le transfert.



