


Aménagement d'un appartement en longueur
Comment réagencer des pièces en enfilade ?

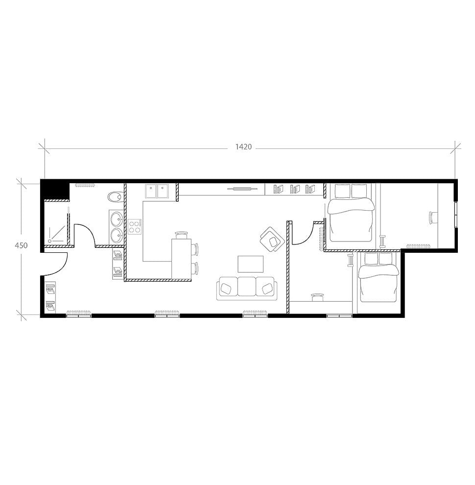
Pour adapter cet appartement en enfilade à la colocation, nous avons revu l’agencement dans son intégralité. Le déplacement de la salle de bain vers l’entrée et l’ouverture de la cuisine sur le salon permet de dégager des espaces communs fonctionnels et conviviaux et d’aménager deux chambres indépendantes, avantageusement optimisées grâce à un couchage en mezzanine dont le garde-corps en verre permet une bonne luminosité. Le tout en conservant le cachet de l’Haussmannien. Cette transformation complète illustre parfaitement comment maîtriser le prix d'une rénovation d'appartement en optimisant chaque mètre carré selon les besoins spécifiques du projet.
- Les conforts apportés
- Une circulation optimisée
- Des espaces couchage bien distincts
- Une température agréable, toute l'année
- Plus de calme pour le voisinage
Dès l'entrée, la porte de l'ancien espace buanderie marque les esprits par son mauvais état. Il faut la remplacer pour pouvoir louer. Pour une rénovation rapide mais qui permet de conserver les moulures, un système ingénieux de fixation a été choisi. Il a permis d'installer une nouvelle porte tout en gardant le cadre existant et les moulures qui viennent s’y appuyer.
Pour cette location, une grande pièce de vie avec une cuisine ouverte est aménagée. L’ancien revêtement de sol pvc est remplacé par un carrelage effet bois. Ce dernier est doublé d’une sous-couche acoustique de faible épaisseur qui permet de réduire les bruits d'impacts et de préserver ainsi le calme des voisins du dessous.
Très énergivores et trop vétustes pour un appartement voué à la location, les anciens radiateurs électriques sont remplacés par des modèles à inertie qui diffusent une chaleur douce. Et sous les grandes fenêtres de cet appartement, le format plinthe s'est naturellement imposé.
Deux chambres disposant chacune d'un coin bureau et d’un espace couchage en mezzanine sont aménagées. Un garde-corps tout en verre et sans montant assure la sécurité des occupants tout en laissant la lumière naturelle circuler jusqu’aux espaces couchage, qui sont dépourvus de fenêtres.
Dans la nouvelle salle de bain, un espace douche moderne et très design est installé pour un confort optimal. Pour libérer l'espace déjà réduit de cette pièce sans oublier le côté pratique, une porte de douche en verre et à galandage assure élégamment l’étanchéité de la zone.
Réagencement des pièces Démolition et création de cloisons, carrelage sol, peinture, portes | 15 000 € TTC |
|---|---|
Aménagement d'une cuisine Mobilier, électroménager | 10 000 € TTC |
Nouvelle salle de bain Douche à l'italienne, mobilier, plomberie | 10 000 € TTC |
Chauffage Radiateurs plinthe | 5 000 € TTC |
TOTAL TTC 40 000 € Prix indicatif intégrant fourniture et pose, TVA applicable incluse (10% en rénovation, 20% en neuf). | |




