


Une cuisine campagne chic
Comment rénover une cuisine pour la rendre plus accessible ?

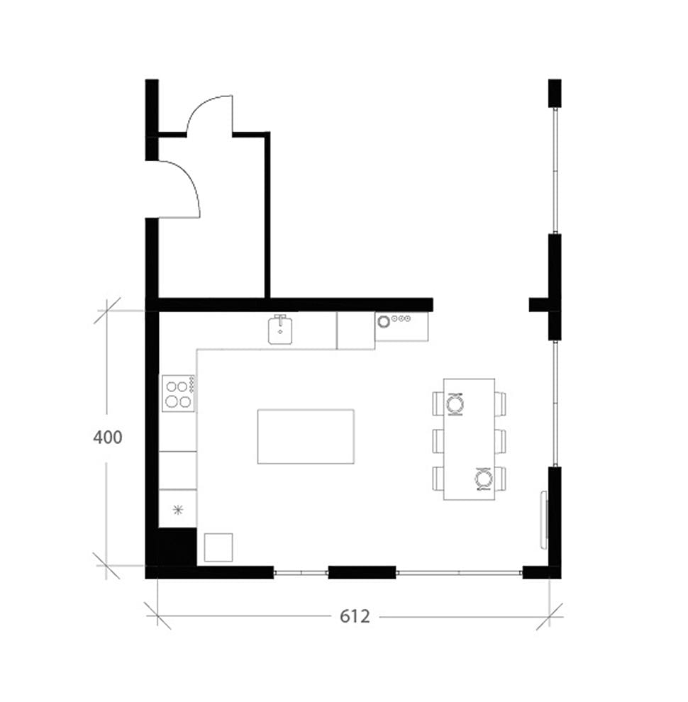
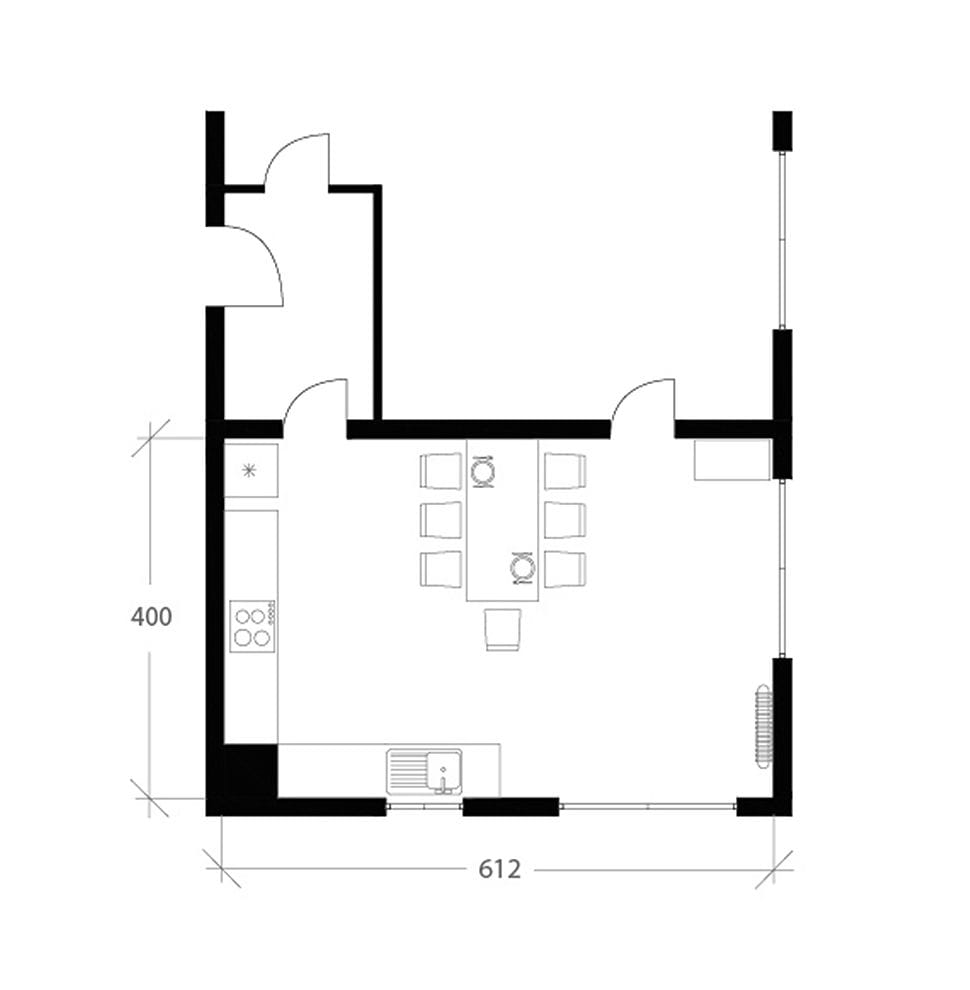
Pour cette rénovation qui devait allier style et sécurité, nous avons revu la configuration de la pièce : la condamnation d’une porte et l’élargissement de la seconde ont permis de dégager la circulation et d’implanter une cuisine en L, mieux adaptée à l’âge des propriétaires. Carrelage antidérapant, seuils de porte-fenêtre extra-plats, rangements bas, électroménager à mi-hauteur, poignées ergonomiques, mitigeur infrarouge : tout est pensé pour sécuriser les gestes quotidiens des habitants.
- Les conforts apportés
- Une cuisine sécurisée et sans danger
- Des équipements pratiques et fonctionnels

La cuisine est repensée pour avoir une implantation pratique et fonctionnelle. En plus d'avoir une disposition en L, tout est installé pour être à la bonne hauteur : le four et le lave vaisselle sont installés dans des 1/2 colonnes. Plus besoin de se baisser pour sortir un plat du four ou ranger la vaisselle. Il y a peu de meubles hauts, pas toujours faciles d'accès.
L'espace évier et le plan de travail sont optimisés. Pour l'évier, de l'inox nid d'abeille permet un entretien facile.
Le plan de travail compact intègre un égouttoir ciselé (résistant aux tâches, rayures et détergents). La cuve sous plan soigne encore davantage l'esthétisme de cette cuisine et on prévoit un élément de tri sélectif dans le meuble sous-évier.
Les nouvelles baies vitrées sont équipées de seuils bas, pour éviter les chutes en passant de la cuisine au jardin. Cela permet dans le même temps d'assurer une meilleure isolation thermique à la pièce. En effet, le vitrage est constitué d'un verre qui permet de maximiser dans le même temps l'apport de lumière et le confort thermique.
Cette cuisine a tous les atouts d'une cuisine moderne avec ses équipements design et technologiques. Le mitigeur choisi se met en marche et s'arrête par simple effleurement.
La hotte est à la fois décorative avec son design épuré en verre noir, et parfaitement fonctionnelle avec les différents niveaux d'aspiration, le recyclage de l'air et sa fonction éclairage.
| Équipements Cuisine, électroménager, évier et robinetterie, baies vitrées | 8 550 € TTC | 
|---|---|
| Revêtements Faïence murale, carrelage de sol, peinture | 800 € TTC | 
| Matériaux Colle et joints, matériel électrique et plomberie | 650 € TTC | 
| Installation Dépose et évacuation des gravats, mise en œuvre | 3 500 € TTC | 
| TOTAL TTC 15 300 € Prix indicatif intégrant fourniture et pose, TVA applicable incluse (10% en rénovation, 20% en neuf). | |


