


Un salon vintage
Comment transformer un local commercial en appartement de caractère ?

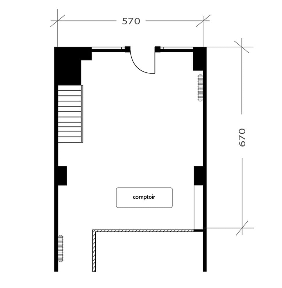
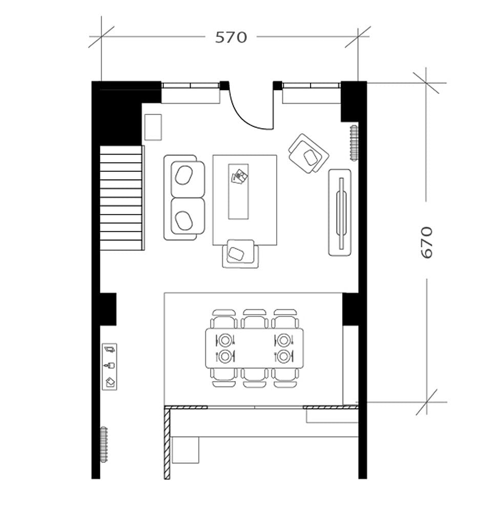
Pour adapter cet ancien espace commercial en une pièce de vie confortable, esthétique et pratique sans pour autant lancer de lourds travaux de façade, nous avons choisi de conserver l'ancienne vitrine mais d’en remplacer le vitrage. Les éléments caractéristiques de la boutique ont également été préservés. Le résultat ? Une isolation complète, une intimité totale et un logement au charme atypique.
- Les conforts apportés
- Plus de calme et d'intimité
- Une température agréable, toute l'année
- Un cachet d'origine conservé
On conserve la vitrine de l'ancienne boutique mais on remplace le verre par un double vitrage translucide texturé qui garantit l'intimité des occupants sans perte de luminosité. Les hautes performances acoustiques du vitrage assurent le calme dans cet appartement qui donne sur une rue passante. La sécurité n'est pas oubliée, avec le choix d'un verre feuilleté.
Pour assurer le confort thermique du foyer, une isolation des murs par l'intérieur est réalisée avec des panneaux semi-rigide en laine de verre à dérouler, associés à une plaque de plâtre dépolluante. Pour compléter le confort de la pièce, on remplace le radiateur existant par un modèle à chaleur douce à la fois efficace, économe et esthétique.
L'ancien espace de stockage devient une cuisine. Pour bénéficier d'un apport lumineux naturel, notre Manager Travaux fait rénover la cloison de séparation entre la cuisine et la salle à manger et en profite pour créer une baie vitrée fixe. La cloison abîmée est rénovée sans travaux lourds grâce à un revêtement en fibre de verre ethétique et ultra-résistant.
Équipements Vitrine, radiateur, bar | 5 000 € TTC |
|---|---|
Revêtements Sol stratifié, toile de verre | 600 € TTC |
Matériaux Préparation du sol, isolation thermique par l'intérieur, peinture, matériel électrique | 1 500 € TTC |
Installation Mise en œuvre | 3 800 € TTC |
TOTAL TTC 10 900 € Prix indicatif intégrant fourniture et pose, TVA applicable incluse (10% en rénovation, 20% en neuf). | |


