


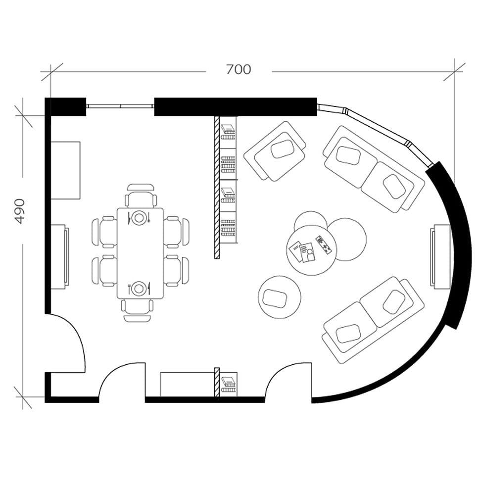
Un salon salle à manger
Comment apporter calme et fluidité à un intérieur haussmannien ?

Pour plus de praticité et une sensation d’espace accrue, nous avons créé une ouverture afin d’accéder directement à la cuisine depuis la salle à manger. La double porte donnant sur le salon est également remplacée par une large ouverture qui apporte de la perspective. Pour gagner en calme tout en préservant le cachet haussmannien de l’appartement, nous avons changé les vitrages mais conservé les huisseries, et posé un carrelage imitation point de Hongrie associé à une sous couche acoustique.
- Les conforts apportés
- Plus de confort thermique
- Un appartement plus calme
- Une circulation plus facile
Le parquet trop abîmé pour être restauré a été remplacé par un carrelage imitation parquet. Le carrelage est posé à même le parquet, avec la mise en place en amont d'un traitement pour une isolation acoustique du sol. De cette façon, notre famille conserve l'esthétique d'un sol ancien avec un revêtement beaucoup plus simple d'entretien.
Des espaces de rangement sur mesure et optimisé ont été créés avec des cloisons alvéolaires et pour cacher la télévision, des portes coulissantes en verre laqué du plus bel effet ont été installées. Elles permettent d'apporter une touche de couleur sur cette bibliothèque blanche tout en masquant astucieusement l'écran quand il n'est pas utilisé.
L'ancien vitrage des fenêtres a été remplacé par des verres apportant une meilleure isolation thermique, tout en offrant une transmission lumineuse supérieure à ce qui se fait habituellement. Le double vitrage est complété par un verre feuilleté acoustique qui augmente l'isolation phonique du salon.
Équipements Fenêtres, bibliothèque sur mesure, table en verre | 1 950 € TTC |
---|---|
Revêtements Carrelage de sol et peinture murale | 1 250 € TTC |
Matériaux Préparation du sol, colle et joints, sous-couche acoustique, fourniture matériel électrique | 1 500 € TTC |
Installation Dépose et évacuation des gravats, mise en œuvre | 4 900 € TTC |
TOTAL TTC 9 600 € Prix indicatif intégrant fourniture et pose, TVA applicable incluse (10% en rénovation, 20% en neuf). |