


Un salon de lecture et peinture scandinave
Comment aménager les combles d'un chalet en studio d'artiste ?

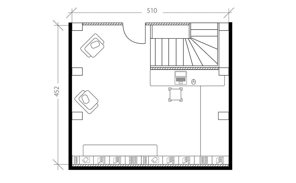
L’aménagement de ces combles a été dicté par le souhait d’en faire un cocon propice à la création. Pour conserver le côté chaleureux de la charpente brute, nous avons isolé le toit par l’extérieur. Un sol bois clair posé sur une couche insonorisante apporte calme et luminosité à la pièce, un revêtement mural dépolluant améliore la qualité de l’air. Pour allier pratique et esthétique, des rangements sur mesure optimisent les espaces sous-pente et une cloison en verre magnétique sert de pêle-mêle.
- Les conforts apportés
- Plus de lumière naturelle
- Mieux isolé et tempéré
- Un espace optimisé
- Une qualité d'air intérieur améliorée
L'amélioration de la qualité de l'air intérieur est un élément très important pour les propriétaires.
Les cloisons et murs de cet espace détente sont habillés de plaques de plâtre dépolluantes. Ce matériau aux propriétés actives détruit jusqu'à 80 % des formaldéhydes, principaux polluants de l'air intérieur.
Pour améliorer l'isolation thermique de la toiture, nous avons retenu un système de sarking en laine de roche.
Cette solution hautes performances a l'avantage de préserver la charpente, qui reste totalement apparente. Éligible aux aides fiscales, elle présente aussi un intérêt pour le budget !
Pour habiller la cage d'escalier, un revêtement en verre blanc laqué a été posé. Il s'harmonise avec le style épuré de la pièce et l'anime avec ses reflets lumineux. Il a aussi été choisi pour ses propriétés magnétiques : notre artiste peut y afficher ses dernières créations !
Le revêtement de sol a été posé sur une sous-couche acoustique pour atténuer les bruits de pas. Ce sol stratifié au design bois clair contribue à éclairer la pièce. Il est également doté de propriétés anti-statiques et se révèle très facile d'entretien. Facile à poser, il permet de réduire la durée du chantier.
Équipements Bloc-porte, fenêtre de toit, rangement, radiateur | 2 350 € TTC |
---|---|
Revêtements Sol stratifié, verre décoratif et magnétique | 700 € TTC |
Matériaux Isolation de la toiture par l'extérieur, cloisons | 4 000 € TTC |
Installation Dépose et évacuation des gravats, mise en œuvre | 4 600 € TTC |
TOTAL TTC 11 650 € Prix indicatif intégrant fourniture et pose, TVA applicable incluse (10% en rénovation, 20% en neuf). |