


Un salon campagne chic
Comment rénover une maison de campagne en anticipant la retraite ?

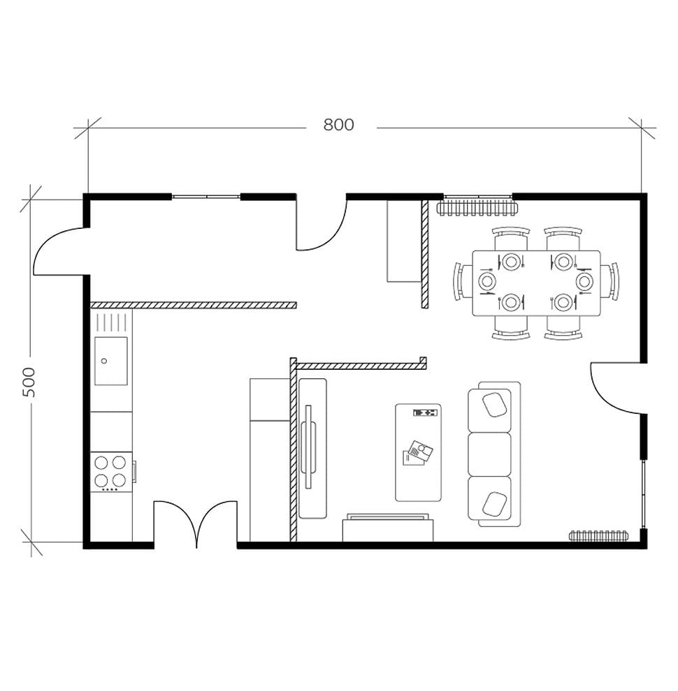
Afin de sécuriser cette résidence secondaire et d’en faire un cocon douillet, nous avons opté pour un pilotage à distance : volets et éclairage connectés simulent la présence du couple lors des périodes d’inoccupation tandis que le chauffage se lance les veilles de weekend. Pour anticiper le côté pratique l’âge avançant, la rénovation fait la part belle à l'accessibilité : circulation revue pour des passages plus larges, revêtements antidérapants, baie vitrée sans seuil, poignées ergonomiques…
- Les conforts apportés
- Plus de confort thermique
- Une accessibilité renforcée
- Un pilotage à distance de la maison

En installant une solution domotique, les propriétaires peuvent piloter à distance les volets et les éclairages par smartphone ou tablette. On peut programmer des scenarii pour simuler une présence dans la maison qui n'est pas occupée toute l'année. On peut également inclure le chauffage, et la détection d'évènements comme des coupures de courant par exemple.
De nouvelles menuiseries ont été installées dans la maison pour répondre à des critères d’accessibilité, en particulier en ce qui concerne la largeur des ouvertures (90cm avec un seuil bas pour la porte d'entrée), les seuils (avec un compensateur de fond de rail pour la baie vitrée) et les poignées de préhension facile pour les fenêtres.
Pour éviter les zones froides devant les fenêtres et pouvoir profiter de leur maison toute l'année, les propriétaires décident de changer les fenêtres pour un vitrage avec une isolation thermique renforcée tout en ayant des menuiseries dans le style de la maison de campagne.
Équipements Fenêtre, porte d'entrée, radiateurs | 5 100 € TTC |
|---|---|
Revêtements Carrelage, carreaux de ciment, traitement antidérapant, peinture | 300 € TTC |
Matériaux Préparation du sol, colle et joints, matériel électrique | 1 000 € TTC |
Installation Dépose et évacuatoin des gravats, mise en œuvre | 2 600 € TTC |
TOTAL TTC 9 400 € Prix indicatif intégrant fourniture et pose, TVA applicable incluse (10% en rénovation, 20% en neuf). | |


