


Une salle de bain scandinave
Comment aménager une petite salle de bain toute en longueur ?

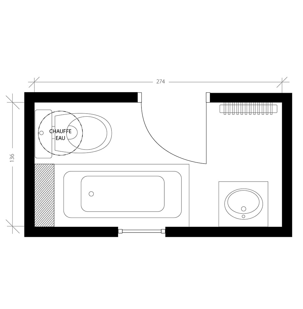
Pour faciliter la circulation de cette petite pièce sans sacrifier la baignoire, nous avons optimisé l’espace et la luminosité : la porte d’entrée est remplacée par un modèle coulissant en verre, coin vasque et espace bain sont séparés par un claustra, WC suspendu et chauffe-eau intégré contribuent à dégager visuellement la pièce. Epurée et fonctionnelle, cette salle de bain est aménagée dans un style scandinave, où le bois clair contraste avec une faïence blanche aux élégants jeux de lumière.
- Les conforts apportés
- Une circulation fluide, des espaces séparés
- Une décoration soignée de style scandinave
- Une pièce de vie plus lumineuse
- Une qualité de l'air préservée
La fenêtre d'origine a été remplacée par un modèle à ouverture oscillo-battante. Ce système permet une ouverture partielle de la fenêtre et laisse circuler l'air avec efficacité, et de façon sécurisée. Un verre imprimé a été choisi pour laisser passer la lumière tout en préservant l'intimité.
Equipements Meuble, toilette, robinetterie, Baignoire | 3 700 € TTC |
|---|---|
Revêtements Sol stratifié, faïence, peinture | 700 € TTC |
Matériaux Plomberie, électricité, produits de mise en œuvre | 1 000 € TTC |
Installation Mise en œuvre, dépose et évacuation des gravats | 3 500 € TTC |
TOTAL TTC 8 900 € Prix indicatif intégrant fourniture et pose, TVA applicable incluse (10% en rénovation, 20% en neuf). | |
Rénovation d’une salle de bain scandinave
Très tendance depuis de nombreuses années, le style scandinave rime avec confort, relaxation, détente, bien-être et harmonie avec la nature. Utilisant beaucoup de matériaux naturels tel que le bois et de couleurs claires, l’ambiance et la décoration scandinave s’invitent dans toutes les pièces de la maison et bien-sûr la salle de bains n’en est pas exclue. Ce lieu qui se veut propice à la détente doit être à la fois synonyme de plus de confort et d’une pièce pratique. Les experts de La Maison Saint-Gobain vous donnent des conseils et des astuces pour réussir la rénovation de votre salle de bain scandinave.
Tout pour réussir la rénovation de votre salle de bain scandinave
Pour rénover votre salle de bains scandinave, vous devez respecter certains critères qui caractérisent ce style de décor. Aussi, il convient de ne pas trop encombrer l’espace et de conserver une ambiance épurée dans la pièce. L’utilisation de matériaux naturels est en outre à privilégier au maximum. Découvrez le guide d’une rénovation de salle de bain en bonne et due forme.
Salle de bain scandinave et le choix des couleurs
Dans une salle de bains à la déco et à l’ambiance scandinave, le choix des couleurs est très important. Aussi, il est préconisé de miser sur des couleurs claires et naturelles qui invitent à la détente et qui n’accrochent pas le regard. Vous pouvez ainsi adopter le blanc dans toutes ses nuances, le beige, le vert ou encore le gris clair.
Salle de bain scandinave et choix des meubles et accessoires
Dans une salle de bains scandinave, l’espace doit être épuré et la circulation doit se faire de manière fluide. En outre, la sélection des meubles et des accessoires doit être effectué en fonction de ces critères. Optez si possible pour des meubles suspendus qui libèrent l’espace au sol. Par ailleurs, il est conseillé de choisir dans la mesure du possible du mobilier multi-usages comme l’armoire / miroir au-dessus du lavabo, le coffre à linge salle sur lequel vous pouvez également vous asseoir, etc.
Salle de bain scandinave et choix des matériaux
Dans une salle de bains scandinave, la sélection des matériaux est également très importante. Privilégiez les matériaux naturels et tout particulièrement le bois qui occupe une place de choix dans ce type d’ambiance. Celui-ci peut être utilisé non seulement pour vos meubles mais également pour votre revêtement de sol ou pour vos éléments et accessoires de décoration.
Salle de bain scandinave et le choix de la décoration
Même si celle-ci doit être choisie avec parcimonie, la décoration a néanmoins son importance dans la salle de bains scandinave. Aussi, attachez-vous à choisir une déco qui agrémentera la pièce afin de la rendre chaleureuse, zen et cosy. Dans cette démarche, vous pouvez par exemple accrocher plusieurs miroirs aux murs pour un style moderne, disposer un tapis au sol et poser quelques bougies sur les meubles afin d’accentuer la sensation de bien-être et l’ambiance zen dans la pièce.
Rénovation d’une salle de bain scandinave : le choix de l’éclairage
Pour créer l’ambiance d’une pièce, l’éclairage joue un rôle très important. Plus que la simple vocation purement fonctionnelle, la lumière participe à la mise en valeur des volumes et contribue également à créer une ambiance chaleureuse. Des bougies à LED peuvent ainsi être disposées dans la salle de bains pour un effet déco / zen accompagnées de lampes et de luminaires. L’éclairage LED est toujours recommandé dans une salle de bains car il allie efficacité et faible consommation énergétique.
Le choix des ouvertures pour une salle de bain scandinave
Encore plus que la lumière artificielle, la lumière naturelle doit s’inviter dans votre salle de bains scandinave. Si vous en avez la possibilité, n’hésitez pas à créer de grandes ouvertures afin de laisser entrer la lumière du soleil.


