


Une salle de bain accessible
Comment aménager une salle de bain accessible à tous ?

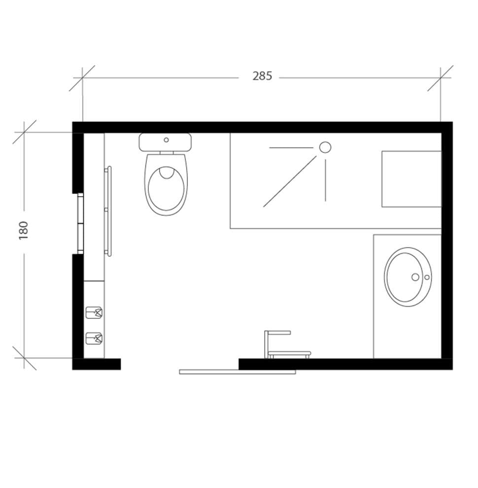
Pour cette salle de bain, le cahier des charges est clair : sécuriser l'espace sans rogner sur l'esthétique. Ici, le style scandinave est soigné, la salle de bain est sublimée, avec un confort optimisé sur chaque cm2 ! Pour cette réalisation, plusieurs points clés : la baignoire est remplacée par une douche de grande taille, au sol on installe un carrelage antidérapant, la circulation dans la pièce est optimisée et enfin, l'ancien WC est remplacé par un modèle surélevé. Tout est prévu pour faciliter le quotidien.
- Les conforts apportés
- Une salle de bain accessible et sécurisée
- Un espace optimisé où l'on circule bien
- Une décoration soignée de style scandinave
On remplace la baignoire existante par une cabine de douche toute équipée. Avec siège escamotable, barre de maintien, receveur extra plat et antidérapant, ce modèle réunit tous les essentiels d'une douche pensée pour être accessible à tous. Elle permet une installation rapide, en lieu et place d'une ancienne baignoire.
Tous les équipements de la salle de bain ont été pensés pour rendre la pièce accessible, sûre, tout en restant agréable et esthétique. Le toilette est légèrement surélevé, la barre d'appui est esthétique et design, le meuble vasque a été conçu avec des ergothérapeutes pour offrir une facilité d'utilisation avec une utilisation possible en position assise.
Équipements Meuble, douche, robinetterie, wc surélevé, porte coulissante | 5 500 € TTC |
---|---|
Revêtements Carrelage de sol, peinture | 250 € TTC |
Matériaux Plomberie, électricité, produits de mise en œuvre | 500 € TTC |
Installation Mise en œuvre, dépose et évacuation des gravats | 3 450 € TTC |
TOTAL TTC 9 700 € Prix indicatif intégrant fourniture et pose, TVA applicable incluse (10% en rénovation, 20% en neuf). |