


Une maison pour bien vieillir chez soi
Comment adapter son logement à des difficultés de déplacement ?

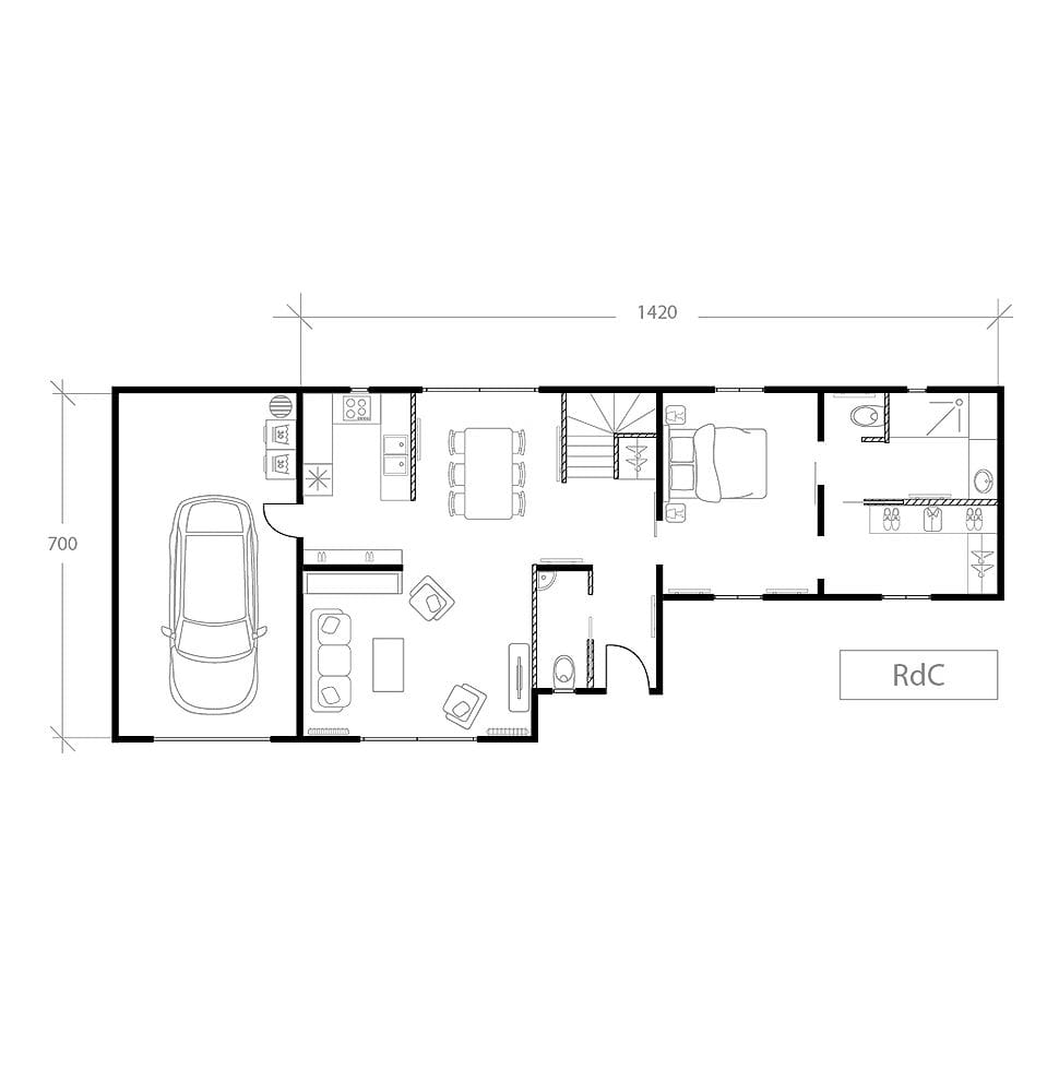
Pour adapter cette maison à la mobilité déclinante de la propriétaire, nous avons revu la circulation et l’aménagement du rez-de-chaussée afin que toutes les pièces - y compris la chambre initialement située à l’étage-, soient accessibles. Passages larges, nivellement du sol et carrelage antidérapant, vaste salle de bain avec douche extra plate, dressing ergonomique, barres de maintien aux endroits stratégiques, éclairage automatique… Tout a été pensé pour allier la sécurité à l’esthétique.
- Les conforts apportés
- Circulation sécurisée et facilitée
- Aménagements plus pratiques
- Plus esthétique
Pour faciliter les déplacements au rez-de-chaussée et le passage d’un fauteuil roulant, il a fallu revoir le sol, l'égaliser et supprimer les différences de niveau même les plus faibles. Le carrelage antidérapant a été choisi pour son look pierre naturelle authentique et chaleureux, et pour la grande sécurité qu'il procure.
Un grand dressing attenant à la chambre est aménagé. Son organisation est faite pour s'adapter à la mobilité limitée de la propriétaire, tout y est facile d'accès. De plus, et comme un peu partout dans la maison, un détecteur de présence permet un éclairage automatique de la pièce.
À la place de la petite salle de bain du rez-de-chaussée, une grande salle de bain tout confort est installée : une cabine de douche esthétique et sécurisante remplace l'ancienne baignoire peu facile à utiliser. Avec son sol antidérapant, son siège escamotable et ses barres d'appui, elle permet une certaine autonomie tout en sécurité.
La circulation du rez-de-chaussée est revue, et des mains courantes sont stratégiquement installées le long du parcours afin de sécuriser les déplacements de la propriétaire. Elles sont fixées sur des cloisons réalisées avec des plaques HABITO®, pensées pour supporter un fort poids et très résistantes dans le temps aux chocs divers, comme ceux liés au passage d'un fauteuil roulant par exemple.
Lors de cette rénovation, toutes les zones de passages sont pensées suffisamment larges et sans seuil pour être compatibles avec un fauteuil roulant et faciliter les accès. Dans la chambre par exemple, une porte à galandage bien plus pratique qu'une porte battante assure un passage large de 90cm.
Réagencement des pièces Démolition et création de cloisons, carrelage sol, peinture, portes. | 12 000 € TTC |
|---|---|
Rénovation de la salle de bain Cabine de douche, mobilier, revêtements. | 20 000 € TTC |
Réorganisation de la cuisine Mobilier, aménagements. | 7 000 € TTC |
Equipements Dressing sur mesure, nouvelle installation électrique… | 7 000 € TTC |
TOTAL TTC 46 000 € Prix indicatif intégrant fourniture et pose, TVA applicable incluse (10% en rénovation, 20% en neuf). | |
Ces articles pourraient vous intéresser :




