


Transformer un local commercial en habitation
Comment transformer un ancien restaurant en confortable souplex ?

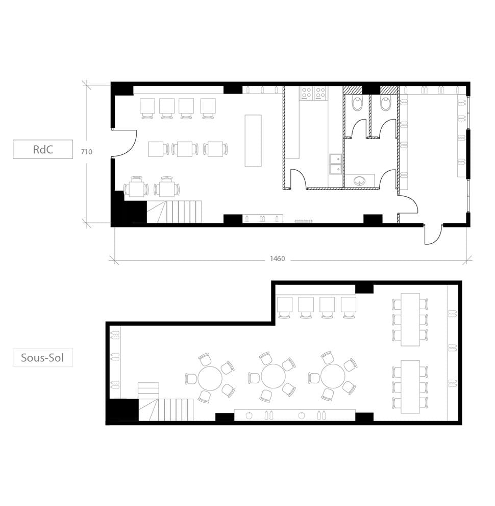
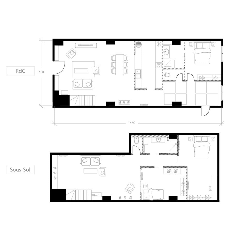
Pour transformer un restaurant et son sous-sol en lieu de vie, il faut être ingénieux. En créant un plancher de verre stratégiquement placé, en remplaçant les fenêtres de façade et en intégrant des verrières aux cloisons, on règle la question de l'apport de lumière naturelle au sous-sol. Chambres d’enfant et pièce d'eau, munies d’un ventilation performante pour un air sain, sont installées au sous-sol. L’isolation phonique du plancher assure calme et intimité dans les différents espaces.
- Les conforts apportés
- Et la lumière fut!
- Une isolation acoustique entre les étages
- Un air sain et renouvelé
- Une salle de bain tout confort
Pour inonder le sous-sol de lumière naturelle, un grand plancher de verre très solide et extra clair est installé. Il est positionné dans le prolongement de la façade vitrée la plus exposée dans la journée, et associé à des miroirs et à une verrière d'atelier au sous-sol, pour un jeu de réflexion qui éclaire naturellement le souplex.
Dans cet ancien restaurant, l'isolation acoustique du plancher est quasi inexistante. Un faux plafond acoustique est donc installé sur la totalité de l'espace en souplex. Tout le monde y trouve son compte : les enfants écoutent leur musique et regardent un film sans déranger et à l'inverse, les parents reçoivent leurs amis sans réveiller leurs enfants.
A l'étage comme au sous-sol, l'espace est redistribué avec des cloisons vitrées. Des cloisons type "atelier" sont choisies pour leur style industriel, et surtout pour maximiser les apports lumineux offerts par la grande façade vitrée et le plancher de verre. De plus, le vitrage de la verrière offre d'excellentes performances d'isolation phonique et de sécurité.
Pour pouvoir créer une salle de bain et des toilettes en sous-sol, une station de relevage a été incontournable. Elle permet de remonter les eaux usées vers les évacuations situées à l’étage. Silencieuse et dissimulée dans un vide technique muni d'une une trappe d'accès, elle se fait discrète.
Avec la création de 2 nouvelles pièces d'eau et l'isolation de l'ancien plancher, il est nécessaire de revoir le renouvellement d'air du souplex. Une VMC double flux intelligente et à haut rendement est installée pour réguler le débit d'air et le taux d'humidité. Ce qui non seulement assainit l'air ambiant mais prévient également les risques de condensation.
Aménagement du souplex Cloisonnement, verrières, revêtements, portes, peinture | 40 000 € TTC |
|---|---|
Traitement du plancher Faux-plafond acoustique, plancher de verre pour apport de lumière | 10 000 € TTC |
Electricité Mise aux normes de l'installation | 16 000 € TTC |
Aménagement de salles de bain et WC Mobilier, équipements, carrelage, ventilation | 21 000 € TTC |
TOTAL TTC 87 000 € Prix indicatif intégrant fourniture et pose, TVA applicable incluse (10% en rénovation, 20% en neuf). | |




