


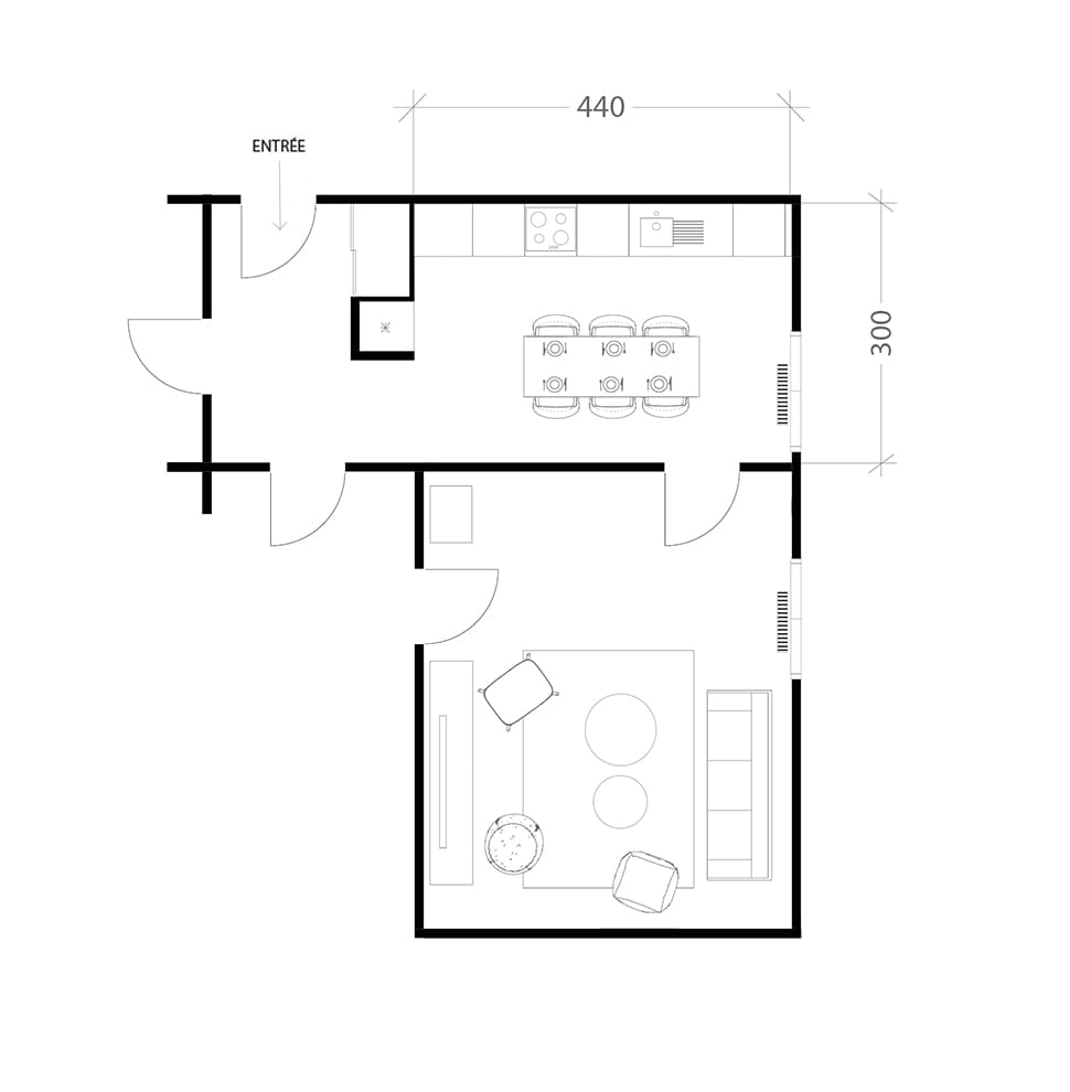
Une cuisine familiale de 15m²
Comment créer une pièce de vie chaleureuse autour de la cuisine ?

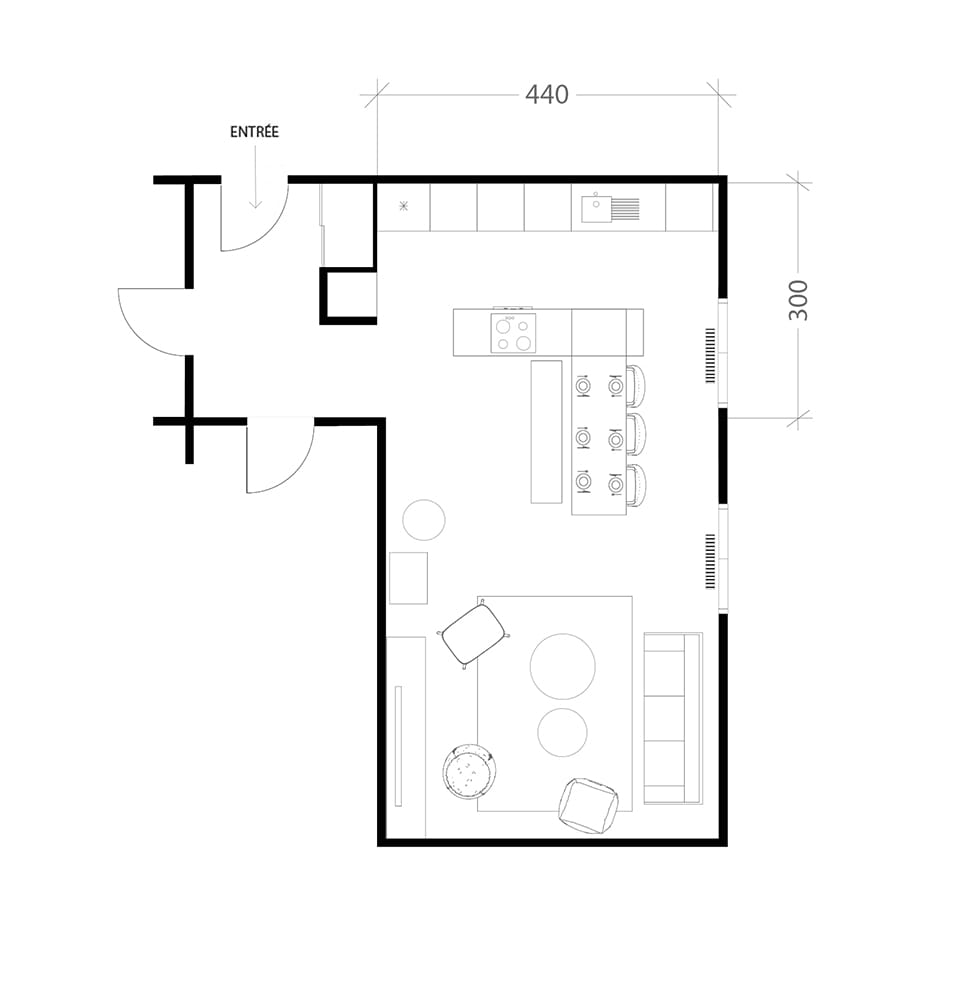
En ouvrant la cuisine sur le salon, en harmonisant les sols et en structurant l’espace autour d’un îlot central dont le plan de travail est élégamment prolongé pour accueillir repas et devoirs, on crée une pièce spacieuse et conviviale, au cœur de la vie de famille. Plan de travail et table en chêne stratifié, sol imitation chêne blanc, meubles blanc qui attrapent la lumière en douceur et assises aux matières naturelles : on crée une ambiance scandinave chaleureuse, dans le respect du budget.
- Les conforts apportés
- Plus fonctionnelle
- Plus chaleureuse et conviviale
- Plus sécurisée pour les enfants
- Meilleur confort thermique

La table à manger familiale est une extension du plan de travail : on crée une table avec un plan de travail en chêne de 60mm. On ajoute un tasseau sous la table fixée à l'îlot central pour assurer la stabilité et la solidité. Cette configuration esthétique, conviviale et pratique permet également de faciliter la circulation, avec un accès direct à la cuisine.
La résine comporte énormément d'avantages : elle résiste aux détergents, aux tâches alimentaires et aux chocs. En plus de son toucher velouté et de sa finition satinée, ce plan de travail en résine permet d'avoir un évier sous plan assorti, sans aucun joint visible ! Pour compléter cet espace, on utilise un mitigeur avec un système de filtration d'eau.
On décloisonne la cuisine et le salon et on harmonise les sols en changeant le revêtement. On opte pour un sol en vinyle : facile d'entretien, résistant aux chocs et aux rayures, il est idéal pour les cuisines et salles à manger.
Il imite parfaitement le bois. On a l'impression d'avoir un parquet pour un petit budget, et beaucoup moins de contraintes d'entretien.
Pour assurer le confort thermique du foyer, une isolation de murs par l'intérieur est réalisée.
On utilise un panneau semi-rigide en laine de verre à dérouler en 120 mm d'épaisseur pour l'isolation, et pour le parement, une plaque de plâtre permettant d'assainir l'air. Le tout est monté sur une ossature métallique.
Équipements Cuisine, électroménager, évier et robinetterie, éclairage | 7 050 € TTC |
---|---|
Revêtement Sol vinyl, peinture | 700 € TTC |
Matériaux Préparation sol, sous-couche acoustique, isolation par l'intérieur | 1 000 € TTC |
Installation Dépose et évacuation des gravats, mise en œuvre | 4 850 € TTC |
TOTAL TTC 13 600 € Prix indicatif intégrant fourniture et pose, TVA applicable incluse (10% en rénovation, 20% en neuf). |