


Une cuisine ethnique
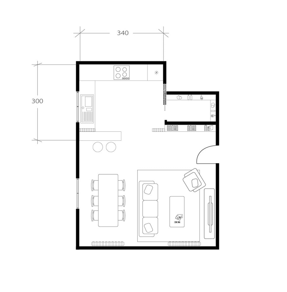
Comment recloisonner une cuisine et la rendre unique ?

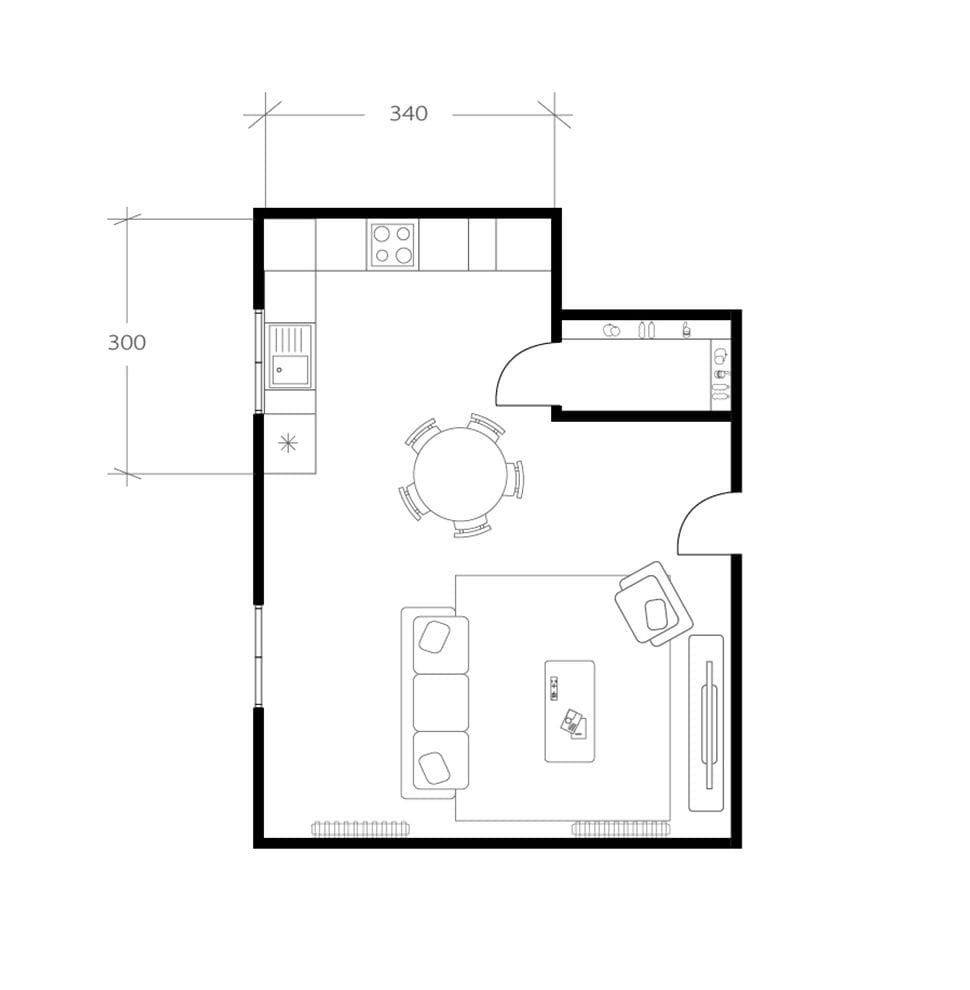
Pour délimiter cette cuisine avec personnalité, nous avons installé un bar et deux claustras en bois qui la séparent visuellement du salon sans l’assombrir. Pas de meubles standards ici mais une réalisation sur mesure pleine de caractère en carreaux de plâtre, où viennent se loger des paniers dans le plus pur style ethnique. Les effets matières sont particulièrement travaillés : le béton ciré, gris au sol et beige sur les meubles et plan de travail, est réveillé par l’alu brossé des équipements.
- Les conforts apportés
- Une pièce de vie plus esthétique
- Des revêtements bien pensés
- Un espace plus fonctionnel

Pour la réalisation des meubles de cuisine et du plan de travail, on utilise des carreaux de plâtre (version hydrofuge étant donné qu'on est dans une pièce d'eau) et du medium. On adapte les différents éléments en fonction des besoins de rangement et de l'espace de la cuisine. Les meubles sont recouverts de béton ciré dans une teinte beige.
On remplace la porte battante qui donne accès au cellier à l'arrière de la cuisine par une porte à galandage. Très discrète, elle s'intègre parfaitement dans la cloison. On gagne ainsi de la place pour l'aménagement de la cuisine, et on optimise la circulation. Cette modification permet d'intégrer un grand réfrigérateur sans rompre la fluidité de la pièce.
On installe un évier 2 cuves en céramique : matériau très résistant, facile à entretenir, et pratique pour faire la vaisselle, laver des légumes... On place un mitigeur qui bascule devant la fenêtre : on peut ouvrir sans problème les 2 vantaux, sans être gêné par la robinetterie, et nettoyer plus simplement l'évier.
On change le revêtement de sol pour avoir un rendu homogène entre le salon et la cuisine. On choisit le béton ciré pour le style, mais aussi parce qu'il est idéal en rénovation. On peut facilement le poser sur le carrelage existant. On réalise une chape mince, elle-même posée sur une sous-couche acoustique. Ce sol est esthétique et offre une bonne isolation phonique.
Équipements Cuisine, électroménager, évier et robinetterie, crédence, porte intérieure | 2 400 € TTC |
|---|---|
Revêtement Béton ciré, peinture | 450 € TTC |
Matériaux Colle, joints, préparation sol, cloison, fourniture matériel électrique et de plomberie | 450 € TTC |
Installation Dépose et évacuation des gravats, mise en œuvre | 3 700 € TTC |
TOTAL TTC 7 300 € Prix indicatif intégrant fourniture et pose, TVA applicable incluse (10% en rénovation, 20% en neuf). | |


