


Une chambre senior
Comment créer une suite parentale pour senior ?

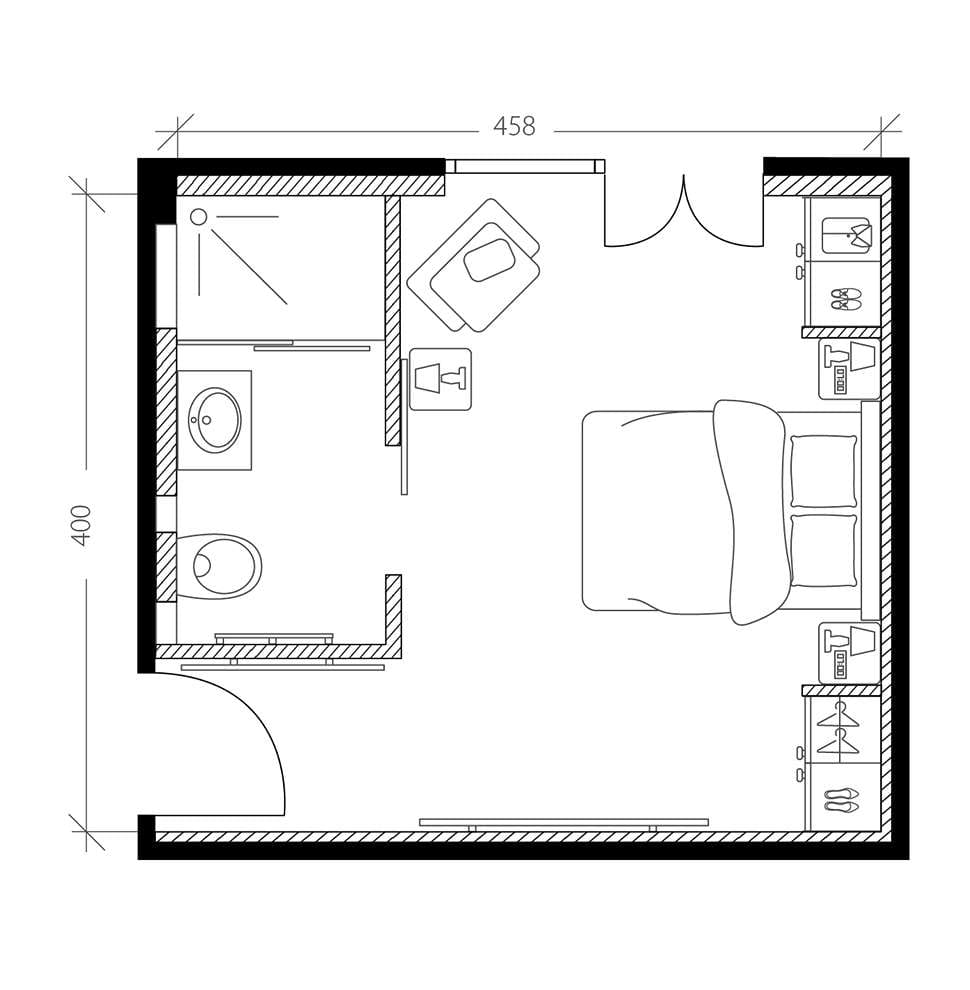
Pour éviter aux occupants de monter à l’étage, nous avons créé une suite au rez-de-chaussée regroupant la chambre d’amis et la buanderie. Circulation fluide, meubles adaptés, équipements ergonomiques, sol antidérapant… : la chambre et sa salle de bain ont été pensées pour une sécurité optimale sans pour autant négliger le côté esthétique. Côté confort, nous avons revu l’isolation des deux pièces, mais également choisi des matériaux et équipements qui améliorent la qualité de l’air.
- Les conforts apportés
- Plus facile à vivre, avec une chambre adaptée
- Plus sain, avec des matériaux dépolluants
- Mieux tempéré, avec une isolation globale
Le sol choisi est antidérapant afin de prévenir le risque de chute. Résistant et durable, adapté à la chambre comme à la salle de bain, il permet une continuité visuelle entre les 2 pièces pour un effet déco garanti ! Ce revêtement exempt de formaldéhydes s'inscrit parfaitement dans un projet garant de la qualité de l'air ambiant.
La salle de bain aménagée dans la chambre répond à tous les besoins des seniors. Elle est ergonomique, avec une circulation aisée entre les toilettes et la douche. Plusieurs barres d'appuis sécurisent les déplacements tandis que de nombreuses niches de rangement sont placées dans la pièce. Elle est également équipée de revêtements antidérapants et facile d'entretien.
Le bien-être thermique est essentiel pour les personnes âgées. Un système d'isolation du mur par l'intérieur a été donc mis en place. Il associe trois éléments :
- une ossature métallique qui assure la résistance mécanique,
- un isolant en laine de verre hautes performances,
- des plaques de plâtre, hydrofugées dans l'espace douche et standard dans le coin chambre.
Pour pouvoir installer des barres de maintien et des mains courantes, nécessaires pour sécuriser les déplacements dans la chambre, des cloisons et contre-cloisons spécifiques ont été mises en œuvre. Ces parois se composent de plaques de plâtre à haute résistance mécanique, fixées sur ossature métallique, et d'une laine de verre qui assure l'isolation phonique.
Les travaux de rénovation sont l'occasion d'améliorer la qualité de l'air intérieur. Pour y parvenir, un faux plafond en plaques de plâtre détruisant jusqu'à 80 % des formaldéhydes a été installé. Le besoin de ventilation de la salle d'eau a également été pris en compte avec la mise en œuvre d'un extracteur d'air permanent, particulièrement discret et silencieux.
Équipements Mobilier adapté, radiateur, sèche-serviettes, douche, WC, porte coulissante | 4 250 € TTC |
|---|---|
Revêtements Carrelage, peinture | 900 € TTC |
Matériaux Cloison et contre-cloison résistante aux chocs, isolation thermique des murs par l'intérieur, plafond suspendu améliorant la qualité de l'air, matériel électrique | 1 550 € TTC |
Installation Mise en œuvre, dépose et évacuation des gravats | 6 300 € TTC |
TOTAL TTC 13 000 € Prix indicatif intégrant fourniture et pose, TVA applicable incluse (10% en rénovation, 20% en neuf). | |


