


Une cuisine atypique sous les toits
Comment créer une cuisine fonctionnelle dans un local sous pente ?

Pour aménager ce plateau technique en pièce de vie confortable et design, nous avons tout d’abord isolé le toit. Nous avons ensuite tiré parti des contraintes de l’espace pour y loger une cuisine noire, mais pas sombre. Délimitée visuellement par un bar adossé au poteau porteur et par une casquette, cette cuisine ouverte vient accrocher la lumière avec sa crédence et son plan de travail clairs. Équipements et éclairage optimisent les zones sous pente de cette réalisation au look moderne.
- Les conforts apportés
- Une pièce bien tempéré, été comme hiver
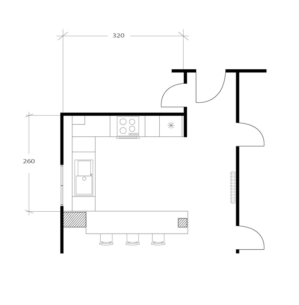
- Un espace atypique optimisé

On tire parti de l’espace atypique en exploitant ses contraintes. Le poteau au milieu de la cuisine est utilisé pour y accrocher un plan de travail transformé en bar. Il permet également de délimiter la cuisine de la salle à manger. Le stratifié présente l'avantage d'être résistant et facile d'entretien et son effet pierre s'adapte parfaitement au style de la cuisine.
On installe un carrelage côté cuisine et un parquet pour le salon. Pour assurer une bonne isolation phonique, on utilise une sous-couche acoustique. On choisit un parquet de seulement 10 mm d'épaisseur, idéal pour la rénovation. On peut y juxtaposer un carrelage imitation pierre sans problème de différence de niveau entre les 2 revêtements.
Placé sous la fenêtre de toit, l'espace évier est optimisé avec le choix d'une grande cuve et d'un mitigeur bec haut avec douchette intégrée. Ainsi on ne perd pas cet espace sous-pente. Une grande cuve, combinée à un mitigeur bec haut permet de faire la vaisselle et de remplir de grandes casseroles plus facilement, sans risque que l'eau soit aspergée dans la cuisine.
L'appartement étant sous les combles, on décide de renforcer l'isolation par l'intérieur pour s'assurer un confort été comme hiver. On choisit une laine minérale moins épaisse que les laines traditionnelles, et une membrane d'étanchéité à l'air pour diminuer la consommation d'énergie. On utilise enfin des plaques de plâtre qui assainissent l'air intérieur.
Équipements Cuisine, plan de travail, électroménager, évier et robinetterie, crédence | 6 250 € TTC |
|---|---|
Revêtement Carrelage, parquet | 700 € TTC |
Matériaux Préparation sol et mur, système d'isolation des combles, fourniture matériel électrique et de plomberie | 2 750 € TTC |
Installation Dépose et évacuation des gravats, mise en œuvre | 5 900 € TTC |
TOTAL TTC 15 600 € Prix indicatif intégrant fourniture et pose, TVA applicable incluse (10% en rénovation, 20% en neuf). | |


