


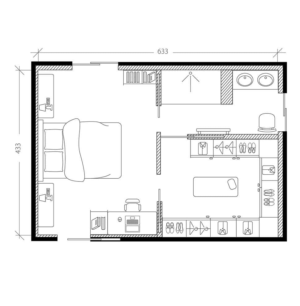
Une suite parentale moderne
Comment aménager une suite parentale de rêve en annexant une chambre ?

Pour créer cette suite parentale magistrale, nous avons reconfiguré l’espace en déplaçant la salle de bain et en annexant une chambre inoccupée. La circulation est fluide, grâce à des portes à galandage dont le verre espion apporte un supplément de lumière depuis la chambre, tout en préservant l’intimité dans la salle d’eau et le dressing. Revêtements luxueux noirs dans les tons gris et blanc, verre, touches de bois et équipements innovants signent un intérieur moderne et design sans être froid.
- Les conforts apportés
- Plus esthétique, avec une chambre moderne
- Plus facile à vivre, avec douche et dressing
- Mieux tempéré, avec une isolation globale
- Plus calme, avec une isolation phonique
Dans une chambre, le bien-être passe par de l'intimité (ne pas entendre), ne pas avoir froid et ne pas avoir trop chaud.
Nous avons donc réalisé une isolation thermique et acoustique composée :
- d'une ossature métallique (la structure mécanique),
- d'un isolant en laine de verre (l’enveloppe thermique et acoustique),
- d'un parement en plaque de plâtre phonique.
Afin de faciliter l'accès à la salle de bain et au dressing sans gêner la circulation, des portes coulissantes à galandage sont installées. Le gain d'espace permet également de libérer de la place pour l'aménagement. Enfin, des portes en verre ont été choisies car elles laissent passer la lumière naturelle, pour une pièce plus lumineuse, donc plus agréable.
La solution retenue pour un environnement sain est un faux plafond en plaques de plâtre montées sur une ossature métallique. Les plaques de plâtre sélectionnées permettent de réduire jusqu'à 80 % la concentration de formaldéhydes, principaux polluants de l'air intérieur. Pour améliorer l'isolation phonique, l'ossature métallique est garnie de laine de verre.
La salle de bain embarque des équipements premium et intelligents :
- une colonne de douche avec mitigeur thermostatique anti-brûlure ;
- une paroi coulissante traitée anti-calcaire ;
- un mitigeur de lavabo à économie d'eau ;
- un sèche-serviette connecté avec détecteur de présence ;
- un miroir éclairant connecté avec désembuage permanent ;
- un meuble vasque design.
Équipements Salle de bain, radiateur, sèche-serviettes, dressing, portes coulissantes | 6 750 € TTC |
|---|---|
Revêtements Carrelage, béton ciré, sol stratifié, revêtement mural en verre, toile de verre, peinture | 1 900 € TTC |
Matériaux Contre-cloison acoustique, cloison résistante à l'humidité, isolation thermique des murs par l'intérieur, plafond suspendu améliorant la qualité de l'air, matériel électrique | 1 800 € TTC |
Installation Mise en œuvre, dépose et évacuation des gravats | 8 550 € TTC |
TOTAL TTC 19 000 € Prix indicatif intégrant fourniture et pose, TVA applicable incluse (10% en rénovation, 20% en neuf). | |


