


Une chambre de musicien
Comment aménager une chambre à l’acoustique parfaite ?

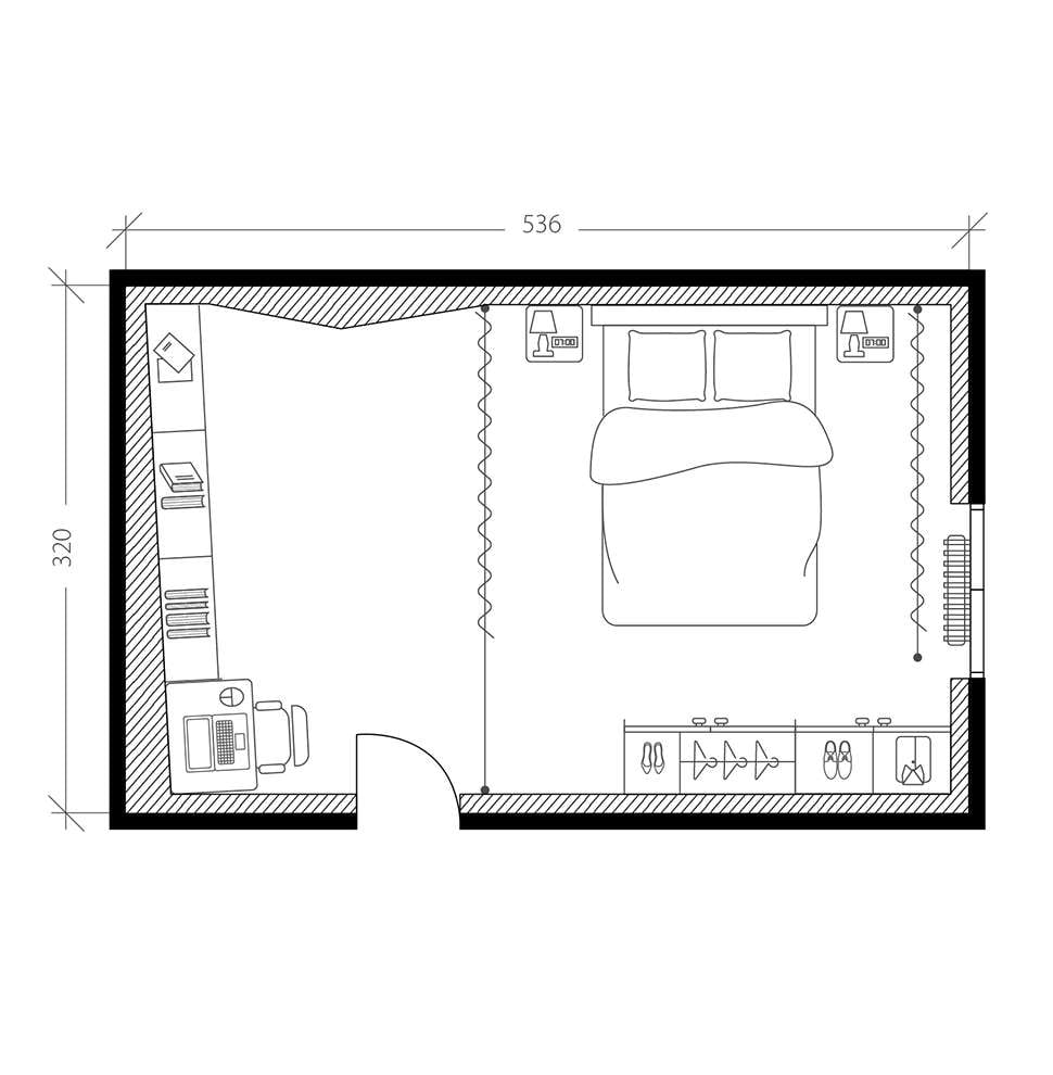
Pour préserver cette chambre de musicien des bruits extérieurs, on créé une « boite dans la boite » en isolant phoniquement murs, sol et plafond, et en installant des portes et fenêtres performantes. Avec sa bibliothèque dissymétrique, ses panneaux et plafond acoustiques innovants, mais aussi avec son parquet en bois massif, elle assure également une excellente qualité sonore. Côté déco, lignes fluides, matériaux naturels et couleurs douces créent une ambiance scandinave propice à la créativité.
- Les conforts apportés
- Plus calme, avec une très bonne isolation
- Plus facile à vivre, avec des coins séparés
- Plus esthétique, avec un style scandinave
Pour un maximum d'efficacité, toute la périphérie de la pièce a été traitée. Le procédé utilisé est une contre-cloison composée d'une ossature métallique, dans laquelle est insérée un panneau acoustique de laine de verre. Pour la finition, une plaque de plâtre composée de deux parements et d'un film acoustique, permet d'atteindre d'excellentes performances.
Le traitement global de l'isolation phonique inclut aussi le plafond. La solution choisie repose sur un faux plafond, performant à plus d'un titre. Acoustiquement très performant, avec la mise en en oeuvre d'une laine de verre et d'une plaque de plâtre acoustique pour la finition, il est également esthétique et améliore significativement la qualité de l'air.
Jouer d'un instrument dans une pièce bien tempérée et préservée des bruits extérieurs, c'est un confort plus qu'appréciable.
Pour y parvenir, un doublage thermo-acoustique du mur extérieur a été réalisé, comprenant :
- une ossature métallique,
- une enveloppe thermique et acoustique en laine de verre,
- une plaque de plâtre acoustique en finition.
Équipements Bloc-porte, fenêtre, radiateur | 1 400 € TTC |
|---|---|
Revêtements Parquet contrecollé, panneau acoustique décoratif, peinture | 1 550 € TTC |
Matériaux Cloison acoustique isolation thermique des murs par l'intérieur, plafond décoratif et acoustique améliorant la qualité de l'air, matériel électrique | 2 600 € TTC |
Installation Mise en œuvre, dépose et évacuation des gravats | 4 950 € TTC |
TOTAL TTC 10 500 € Prix indicatif intégrant fourniture et pose, TVA applicable incluse (10% en rénovation, 20% en neuf). | |


