


Une chambre d'amis
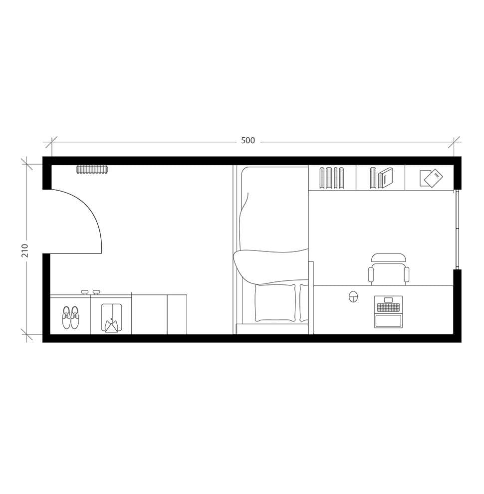
Comment créer une chambre-bureau dans une pièce en longueur ?

Pour transformer ce bureau tout en longueur en chambre d'amis fonctionnelle sans pour autant sacrifier l’espace de travail, nous avons misé sur une exploitation optimale des volumes. La création d’une estrade permet de casser l’effet couloir de la pièce : elle accueille un confortable coin bureau aux rangements optimisés et intègre un lit escamotable. Pour faciliter l’aménagement, la fenêtre a été avantageusement remplacée par une baie coulissante.
- Les conforts apportés
- Plus facile à vivre, avec un lit escamotable
- Plus calme, avec une isolation renforcée
- Plus esthétique, en cassant l'effet couloir
La pièce est réaménagée afin de casser l'impression de couloir. Une estrade sur-mesure est réalisée pour accueillir le coin bureau. Elle est constituée de panneaux OSB vissés sur une ossature en bois composée de chevrons. Pour solidifier l'installation, l'ossature est vissée en périphérie sur une cloison en plaques de plâtre capable de supporter de lourdes charges.
Le mobilier a été choisi selon deux critères : optimiser la surface de travail et maximiser les rangements. La bibliothèque, de pleine hauteur et de faible profondeur, répond pleinement au cahier des charges. Avec ses caissons fermés et ses étagères, elle permet de ranger papiers et divers objets sans dénaturer la pièce.
Équipements Fenêtre, radiateur | 1 750 € TTC |
---|---|
Revêtements Sol stratifié, peinture | 500 € TTC |
Matériaux Contre-cloison résistante aux chocs, matériel électrique, plafond suspendu améliorant la qualité de l'air | 600 € TTC |
Installation Mise en œuvre, dépose et évacuation des gravats | 3 150 € TTC |
TOTAL TTC 6 000 € Prix indicatif intégrant fourniture et pose, TVA applicable incluse (10% en rénovation, 20% en neuf). |