


Une chambre d'adulte avec coin lecture
Comment aménager une vraie bibliothèque dans une chambre de 14 m² ?

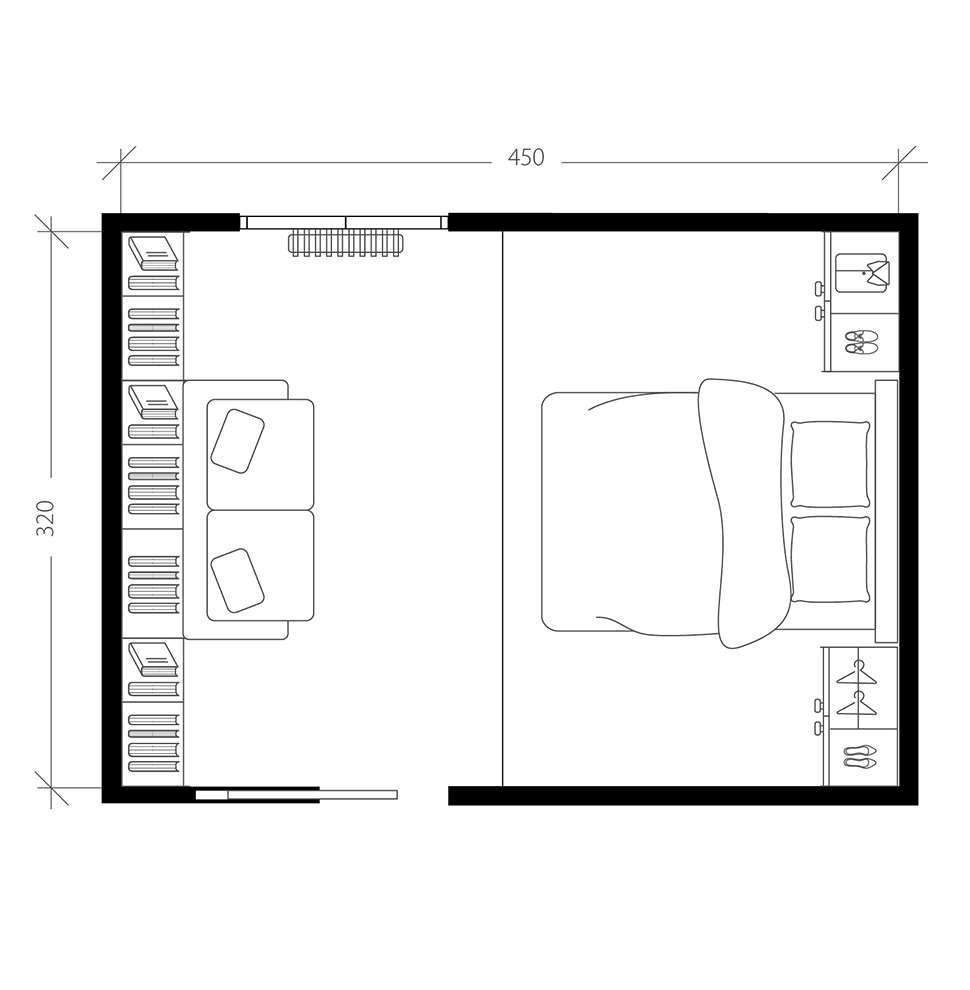
Pour aménager une bibliothèque magistrale et un coin lecture cosy dans la chambre, sans perdre en rangement, chaque m² a été optimisé. Le lit, rehaussé sur une estrade intégrant des tiroirs, est encadré par deux placards discrets dont les porte-miroir apportent profondeur et luminosité à la pièce. Coté déco, le parquet en bois vieilli à lame larges, la porte à galandage en bois veiné et le plaquage chêne des alvéoles de la bibliothèque réalisée sur mesure affirment le style rustique souhaité.
- Les conforts apportés
- Plus facile à vivre, avec un coin lecture
- Plus esthétique, avec une déco "campagne"
Pour parvenir à ranger l'impressionnant volume de livres, nous avons imaginé une bibliothèque de faible profondeur et aux dimensions généreuses. Réalisée sur-mesure en plaques de plâtre alvéolaires, elle occupe donc toute la hauteur et la largeur de la pièce. Avec ses chants plaqués chêne, elle respecte l'esprit rustique des lieux.
Pour donner au coin lecture toute la place qu'il mérite, nous avons choisi d'optimiser l'espace couchage et les rangements. Le lit a donc été placé sur une estrade intégrant :
- 3 tiroirs de grandes dimensions équivalents au volume d'une commode ;
- un dressing en 2 parties, qui offre fonctionnalité (à chacun son espace) et esthétisme (moins lourd visuellement).
Le sol sélectionné - un parquet contrecollé bois à effet vieilli - est solide et se fond pleinement dans le décor. Ses lames larges et longues permettent notamment de donner de la profondeur à la pièce. Pour l'isolation phonique, une sous-couche acoustique a été disposée avant la pose du revêtement.
Équipements Porte à galandage, radiateur, bibliothèque, rangements sous l'estrade | 1 200 € TTC |
---|---|
Revêtements Sol stratifié, peinture | 550 € TTC |
Matériaux Estrade, matériel électrique | 800 € TTC |
Installation Mise en œuvre, dépose et évacuation des gravats | 3 950 € TTC |
TOTAL TTC 6 500 € Prix indicatif intégrant fourniture et pose, TVA applicable incluse (10% en rénovation, 20% en neuf). |