


Une chambre parentale campagne chic
Comment aménager des combles en suite poétique, baignée de lumière ?

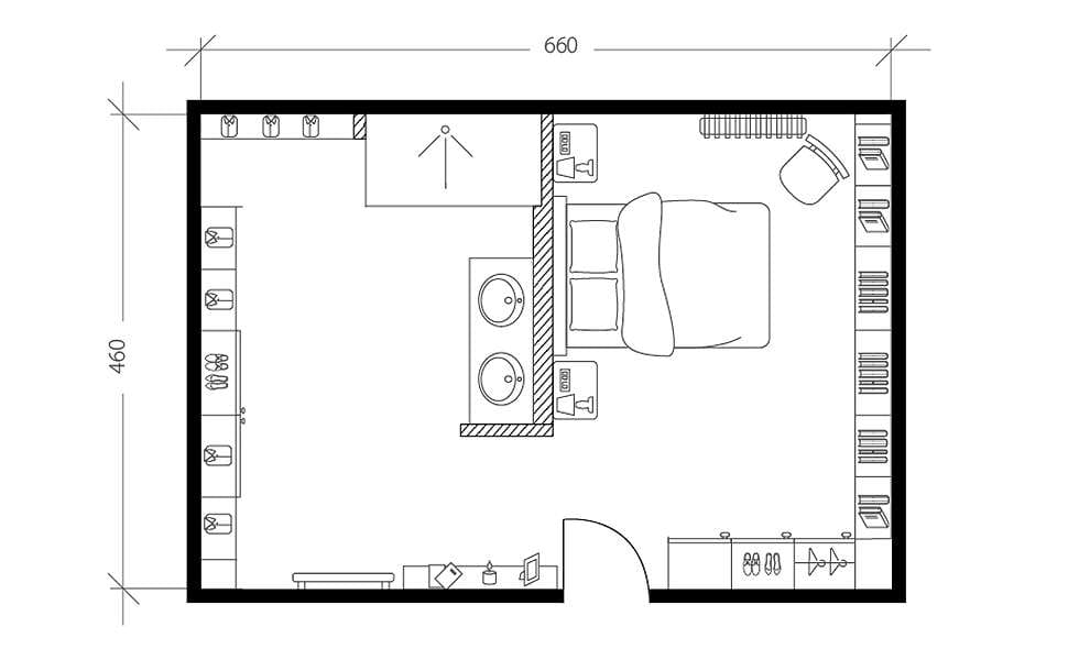
Pour transformer ces combles sans caractère en une suite parentale pleine d’âme, nous avons réalisé un aménagement alliant authenticité et élégance. L’isolation par l'extérieur en sarking préserve le charme de la charpente, le sol est harmonisé par un revêtement imitation parquet rustique, et un muret habillage pierre sépare de façon fluide chambre et salle d’eau, équipées dans l’esprit de la demeure. La lumière vient baigner l’espace grâce à trois nouveaux velux, domotisés pour plus confort.
- Les conforts apportés
- Plus facile à vivre, avec une suite confort
- Plus lumineux, avec de nouvelles fenêtres
- Mieux tempéré, avec une isolation performante
Pour obtenir ce résultat, une isolation par l'extérieur a permis de ne pas modifier la surface habitable, tout en évitant d'intervenir à l'intérieur du logement. Il est constitué par :
- une membrane d'étanchéité à l'air régulant la vapeur d'eau,
- une laine de verre,
- un pilier rehaussant la charpente permettant le rajout d'un isolant,
- un écran de sous-toiture.
Pour apporter une lumière traversante, 3 fenêtres de toits de grande dimensions, réparties de chaque côté de la pièce, ont été installées. Ainsi, la pièce devient très lumineuse. Grâce à l’utilisation de Velux motorisés, programmables et intelligents avec leur capteur pluie, elle est également plus facile à vivre.
L'installation de la pompe de relevage a permis d’intégrer un bac à douche extra plat sans passer par des travaux lourds (creuser le plancher par exemple). L’évacuation des eaux usées est ainsi garantie, même si la pente n’est pas suffisante. Le modèle choisi étant extra-plat, nous avons pur le dissimuler facilement derrière le meuble de la salle de bain.
Équipements Douche, meuble salle de bain, fenêtres de toit, radiateur, sèche-serviettes, rangements | 6 950 € TTC |
|---|---|
Revêtements Sol stratifié, carrelage, parement pierre reconstituée, peinture | 1 000 € TTC |
Matériaux Isolation thermique des combles par l'extérieur, cloison résistante à l'humidité, contre-cloison acoustique, matériel électrique | 3 650 € TTC |
Installation Mise en œuvre, dépose et évacuation des gravats | 9 900 € TTC |
TOTAL TTC 21 500 € Prix indicatif intégrant fourniture et pose, TVA applicable incluse (10% en rénovation, 20% en neuf). | |

